Project home with garage and town-centre convenience.
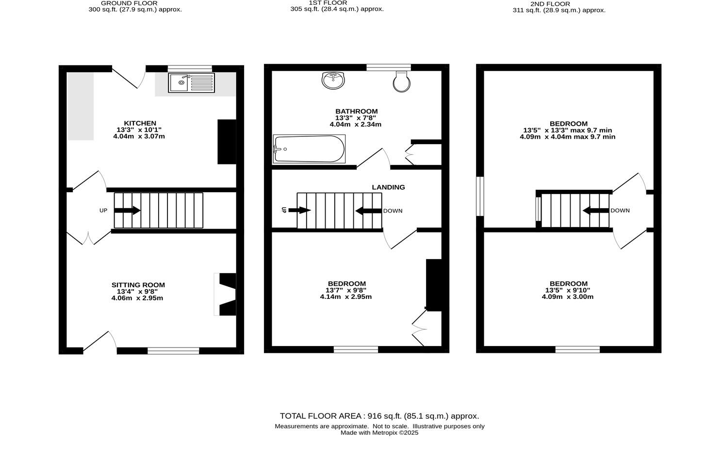
Stone-built Victorian end terrace over three levels
A stone-built Victorian end terrace in Buxton offering genuine scope for improvement and value. The house is arranged over three levels with a sitting room, dining kitchen, three double bedrooms and a single bathroom — an ideal canvas for a buyer wanting to create their own layout and finishes.
Practical positives include a side driveway, owned garage and a small rear seating area. The town centre, theatre, restaurants and good public transport links are within easy walking distance, making this a convenient base for commuters or those who enjoy town amenities.
Major points to note: the property requires upgrading and modernisation throughout; it is being sold subject to Grant of Probate. The local area has higher-than-average crime and measures of deprivation, and the plot is small, so external space is limited. Council tax is low and broadband and mobile signal are good.
This home will suit buyers comfortable with a renovation project — first-time buyers wanting to add value, DIY enthusiasts or investors prepared to refurbish. The freehold tenure and parking/garage ownership add practical appeal, but budget and timescales should account for updating and probate-related sale procedures.
4 bedroom end of terrace house for sale in Leek Road, BUXTON, Derbyshire, SK17 — £310,000 • 4 bed • 1 bath • 1223 ft²
4 bedroom end of terrace house for sale in Green Lane, Buxton, Derbyshire, SK17 — £375,000 • 4 bed • 1 bath • 1797 ft²
3 bedroom end of terrace house for sale in Lightwood Road, Buxton, SK17 — £295,000 • 3 bed • 1 bath • 797 ft²
3 bedroom semi-detached house for sale in Macclesfield Road, Buxton, SK17 — £300,000 • 3 bed • 1 bath • 1210 ft²
6 bedroom house for sale in Hartington Road, Buxton, SK17 — £420,000 • 6 bed • 2 bath • 1615 ft²
3 bedroom terraced house for sale in Bennett Street, Buxton, SK17 — £167,500 • 3 bed • 1 bath • 797 ft²






































