Large plot and garage with scope to create a modern family home near the coast.
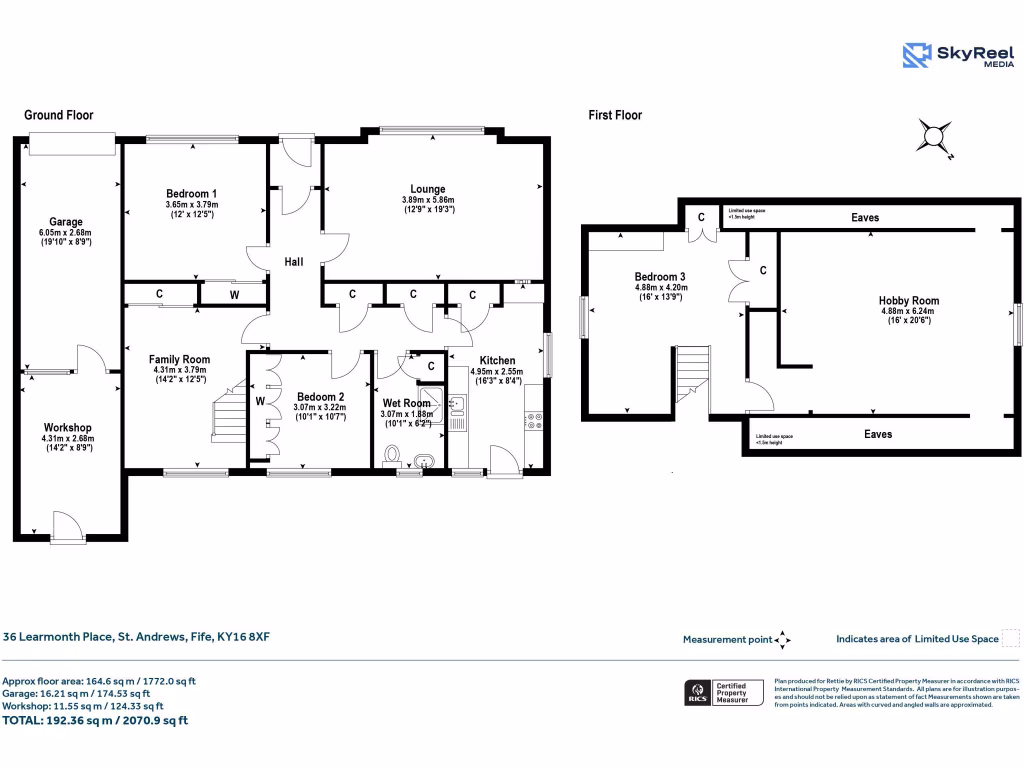
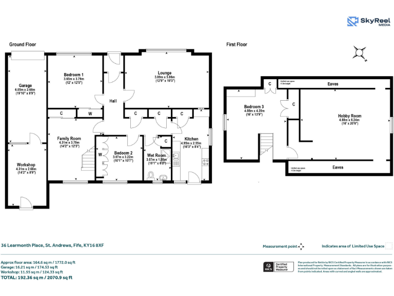
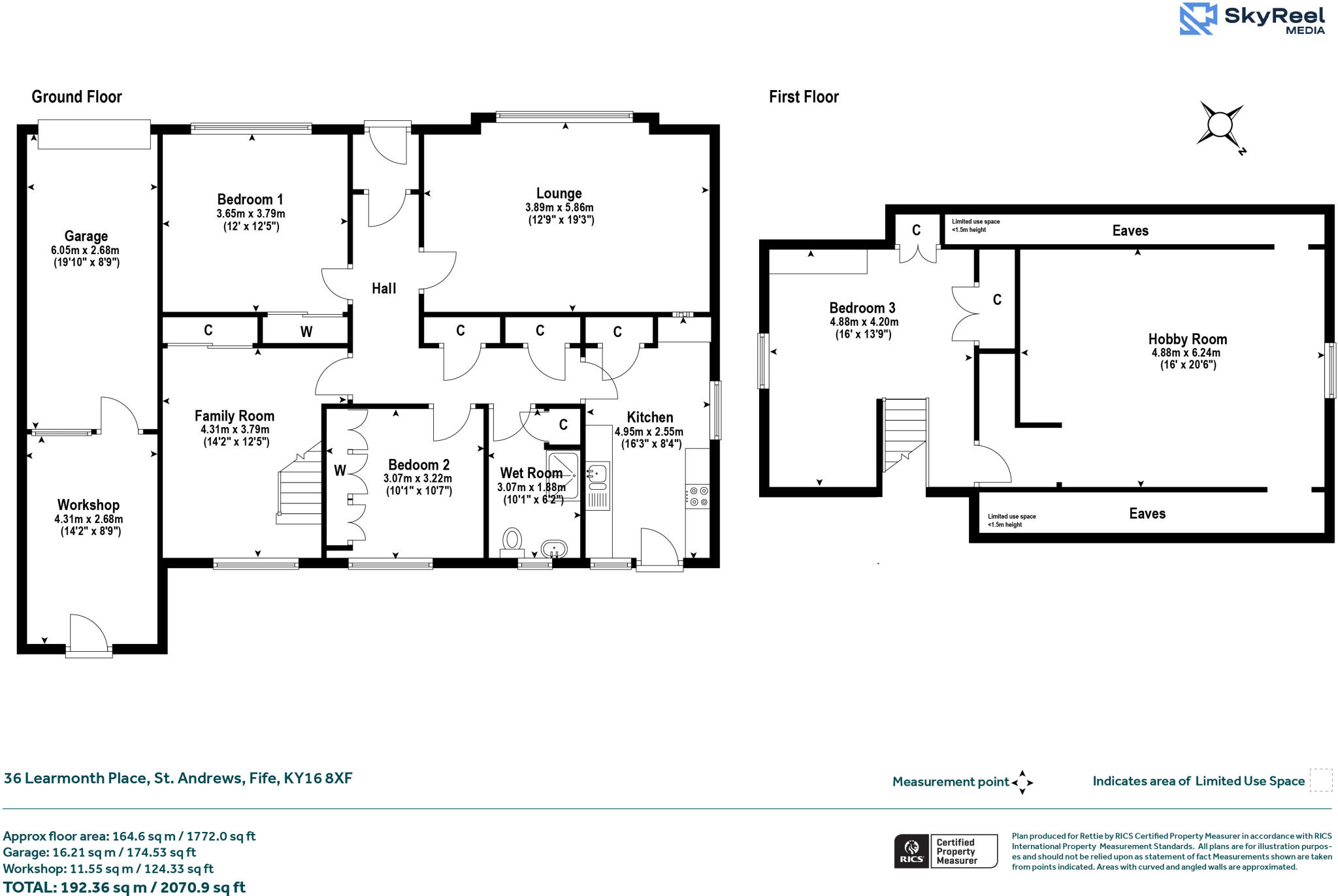
Large detached three-bedroom family house with flexible upper-floor space
Generous rear garden, largely paved with mature planting and apple tree
Attached garage with rear workshop and driveway parking
Bright lounge and family room with large windows and garden views
Upper floor requires conversion to create extra bedrooms or living space
Single wet room only; bathroom provision limited for large families
Slow broadband speeds; mobile signal is excellent
Council Tax Band F (expensive) and area classed as deprived
Set on a quiet residential street just a short distance from St Andrews town centre and beaches, this three-bedroom detached home offers generous accommodation across multi-level living. The ground floor is bright and airy with a large lounge, family room overlooking the garden, two double bedrooms and a practical wet room. An attached garage with rear workshop and a low-maintenance paved front garden complete the exterior. The house is freehold and well positioned for local schools, transport and leisure.
The property is best suited to buyers seeking space and potential rather than a fully finished home. The upper floor is currently flexible storage/attic space with clear scope to convert into additional bedrooms or living accommodation, subject to building regulations. The kitchen and interiors will benefit from updating to create a modern, efficient layout and finishes.
Practical drawbacks are factual: council tax is high (Band F), broadband speeds are reported slow and the property sits in an area described as relatively deprived. The wet room is accessible but there is only a single bathroom facility. Despite these issues, the house’s size, garden, garage workshop and proximity to St Andrews’ amenities represent strong value for a purchaser prepared to invest in refurbishment.
4 bedroom detached house for sale in Spottiswoode Gardens, St. Andrews, Fife, KY16 — £475,000 • 4 bed • 2 bath • 2286 ft²
5 bedroom detached house for sale in Morton Crescent, St. Andrews, Fife, KY16 — £495,000 • 5 bed • 4 bath • 1948 ft²
3 bedroom terraced house for sale in Park Street, St. Andrews, Fife, KY16 — £549,000 • 3 bed • 2 bath • 1334 ft²
5 bedroom detached house for sale in Cant Crescent, St. Andrews, KY16 — £700,000 • 5 bed • 3 bath • 1915 ft²
3 bedroom terraced house for sale in 13 Straiton Wynd, St Andrews, KY16 8HT, KY16 — £230,000 • 3 bed • 1 bath • 583 ft²
3 bedroom detached house for sale in Canongate, St Andrews, KY16 — £510,000 • 3 bed • 2 bath • 1589 ft²


















































































