**Standout Features:**
- Newly renovated two-bedroom semi-detached home
- Modern design with an open plan kitchen/diner
- Spacious lounge and two generously sized bedrooms
- Private rear garden with driveway parking
- Located in the desirable South Swinton area close to schools, amenities, and transport links
- Low Council Tax Band B and freehold tenure
**Notable Concerns:**
- Smaller plot size may limit outdoor expansion
- Limited parking availability on the street
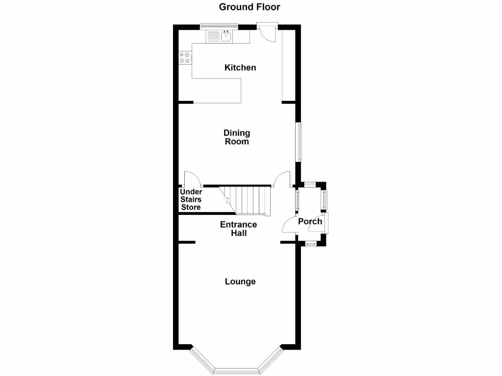
Find your dream family home in the thriving South Swinton area! This beautifully modernized two-bedroom semi-detached property boasts contemporary charm throughout, perfect for first-time buyers or a growing family. Featuring a spacious lounge and an inviting open-plan kitchen/diner, this home is ideal for entertaining and everyday living. It enjoys quick access to highly-rated schools, making it an excellent choice for families seeking educational opportunities.
Step outside to a private rear garden perfect for children or pets to play, plus driveway parking for added convenience. With an EPC Rating of C, this home is energy-efficient and ready to move in without the need for further renovations. Don't miss your chance to secure a slice of suburban comfort in a well-connected community—early internal viewing is essential as properties like this don't stay on the market for long!
3 bedroom semi-detached house for sale in Allenby Road, Swinton, Manchester, Greater Manchester, M27 — £330,000 • 3 bed • 1 bath • 1033 ft²
2 bedroom semi-detached house for sale in Ashley Avenue, Swinton, M27 — £270,000 • 2 bed • 1 bath • 801 ft²
3 bedroom semi-detached house for sale in Oaklands Road, Swinton, Manchester, M27 — £325,000 • 3 bed • 1 bath • 490 ft²
2 bedroom semi-detached house for sale in Dorning Road, Swinton, Manchester, Greater Manchester, M27 — £180,000 • 2 bed • 1 bath • 686 ft²
3 bedroom semi-detached house for sale in Folly Lane, Swinton, Manchester, Greater Manchester, M27 — £325,000 • 3 bed • 2 bath • 1022 ft²
3 bedroom semi-detached house for sale in Clovelly Road, Swinton, M27 — £325,000 • 3 bed • 1 bath • 1023 ft²






































































