Bright living with concierge, gym and secure parking moments from Battersea Park.
Open-plan reception with floor-to-ceiling glazing and abundant natural light
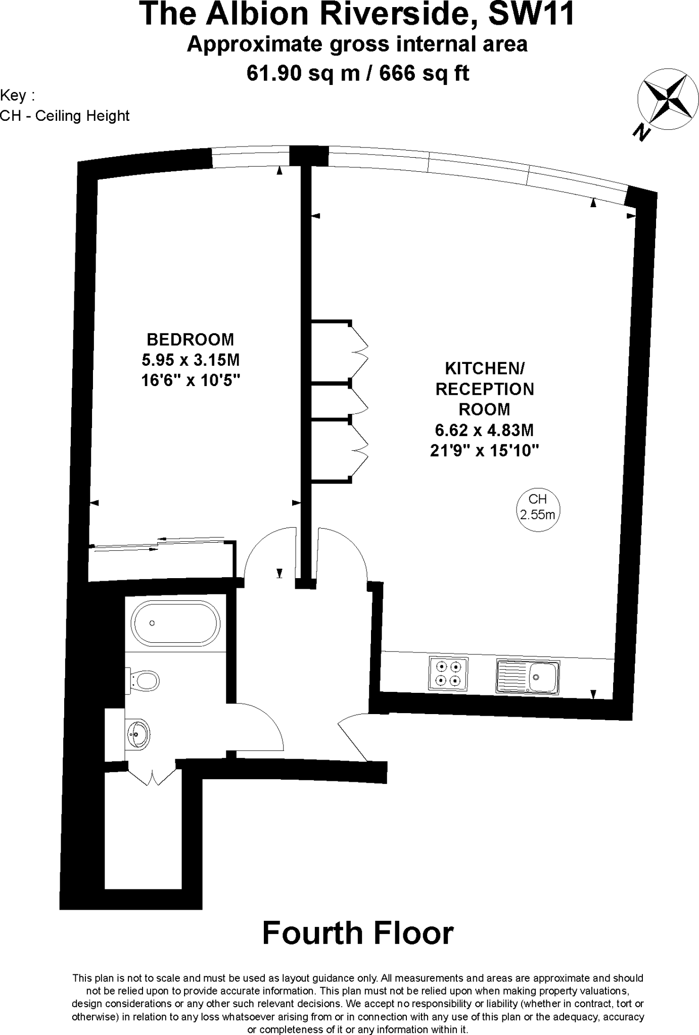
This fourth-floor, one-bedroom home sits in Albion Riverside, a well-regarded riverside development completed in the mid-2000s. The open-plan reception and dining room benefits from full-height glazing that floods the space with light; the kitchen is contemporary and fully fitted with stone worktops and integrated appliances. The bedroom offers good fitted storage and a peaceful outlook. The development includes 24-hour concierge, an on-site gym and swimming pool, landscaped communal gardens and secure underground parking — valuable for commuters and city professionals.
Practical strengths include a long lease (967 years) and very low flood risk. The apartment is presented to a high standard with modern finishes and laminate/wood flooring throughout. Broadband speeds are fast and mobile signal is excellent, supporting home working. The location is a major asset: moments from Battersea Park, Albert Bridge and close to Battersea Power Station, with multiple rail and tube options and frequent buses to central London.
Buyers should note this is a leasehold property with a small ground rent of £225 and an expensive council tax band. Heating is warm-air electric (Electricaire), which can be less efficient than gas systems — check running costs. Crime levels are average for the area. Some floorplans for the development show a narrow balcony/terrace while others do not; confirm whether this specific apartment includes private outdoor space.
Overall this apartment suits a first-time buyer or buyer seeking a low-maintenance city base with strong amenity provision and excellent transport links. It also presents lettings potential given location and onsite facilities, but factor service charges, utilities and council tax into affordability calculations.
3 bedroom apartment for sale in Albion Riverside, Battersea, SW11 — £2,495,000 • 3 bed • 2 bath • 2185 ft²
2 bedroom apartment for sale in Albion Riverside, Battersea, SW11 — £1,550,000 • 2 bed • 2 bath • 1399 ft²
3 bedroom apartment for sale in Albion Riverside, Battersea, SW11 — £2,575,000 • 3 bed • 2 bath • 1729 ft²
2 bedroom apartment for sale in Albion Riverside, Battersea,SW11 — £850,000 • 2 bed • 2 bath • 883 ft²
4 bedroom flat for sale in Riverside One, 22 Hester Road, London, SW11 — £5,250,000 • 4 bed • 4 bath • 4188 ft²
2 bedroom apartment for sale in Albion Riverside, SW11 — £1,050,000 • 2 bed • 2 bath • 991 ft²






































































