Compact, adaptable home with converted garage and low-maintenance garden.
Chain free three-bedroom mid-terrace with compact footprint
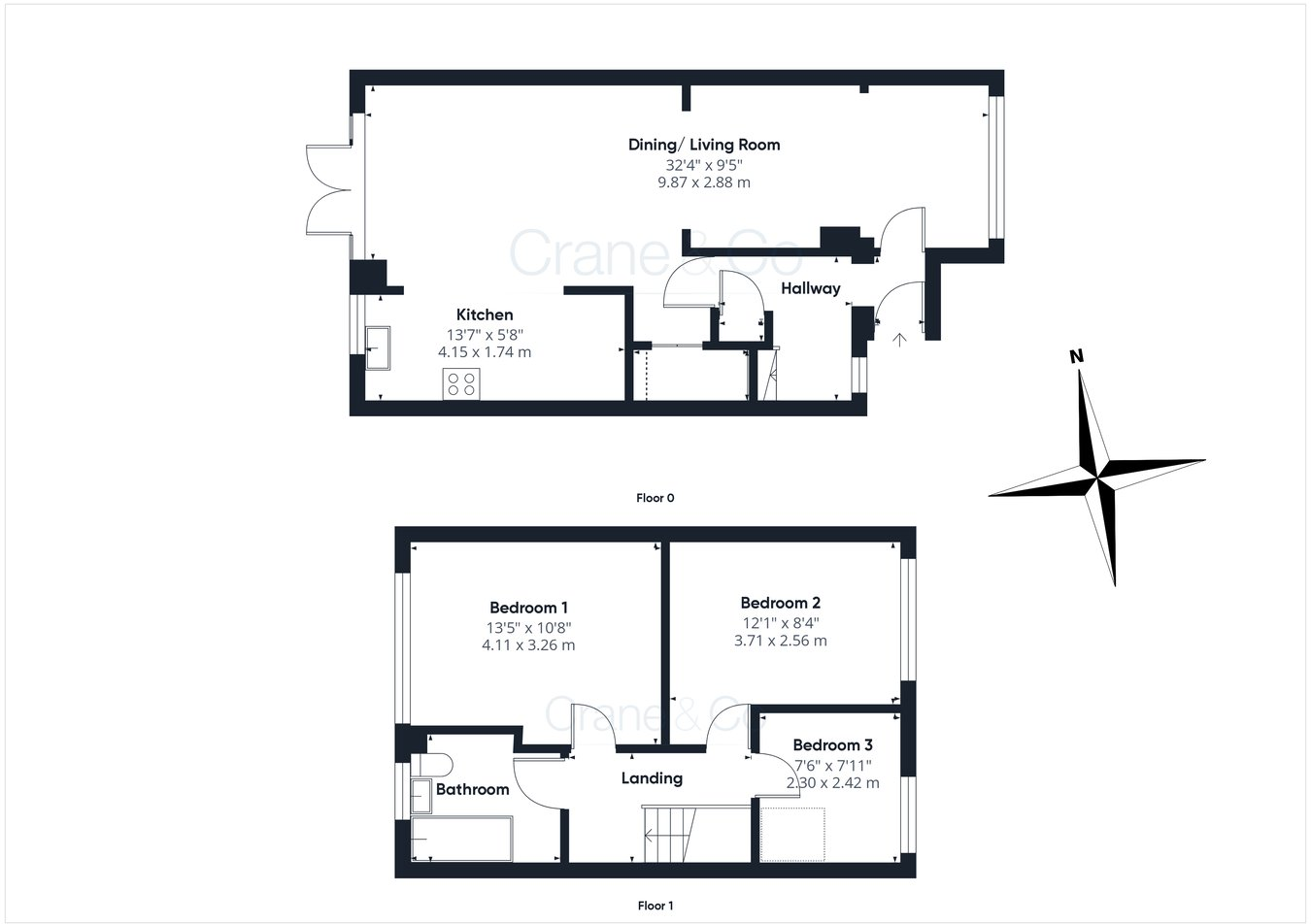
This three-bedroom mid-terrace on Oaktree Way offers practical living across a compact footprint, priced to reflect its size and potential (price guide £260,000–£285,000). The ground floor is open plan with a breakfast bar and contemporary double doors onto a low-maintenance garden, creating a sociable, light-filled living space. A former garage has been converted into an additional reception room, useful as a home office, snug or playroom.
Upstairs provides three bedrooms and a family bathroom arranged in a straightforward traditional layout. The property was built in the late 1970s–early 1980s, has double glazing (install date unknown), cavity walls with partial insulation (assumed) and gas central heating via a boiler and radiators. There is no flooding risk recorded and council tax is described as affordable.
Practical considerations: the home shows some dated areas and will benefit from selective updating or refurbishment to modernise finishes. Broadband speeds are slow in the area, which may affect heavy remote-working or streaming. The plot and overall internal size are small, so buyers needing generous living space should note the compact proportions.
Located in a generally affluent locale with good local amenities and predominantly industrious-transition surroundings, the house is chain free and suited to first-time buyers or small families seeking a manageable, adaptable home close to schools and town facilities.
3 bedroom semi-detached house for sale in Sussex Close, Hailsham, BN27 — £210,000 • 3 bed • 1 bath • 541 ft²
3 bedroom link detached house for sale in Oaklands Way, Hailsham, BN27 — £340,000 • 3 bed • 1 bath • 769 ft²
3 bedroom semi-detached house for sale in Harebeating Drive, Hailsham, BN27 — £300,000 • 3 bed • 1 bath • 836 ft²
3 bedroom end of terrace house for sale in Reef Way, Hailsham, BN27 — £315,000 • 3 bed • 2 bath • 642 ft²
3 bedroom end of terrace house for sale in Oxendean Gardens, Eastbourne, BN22 — £280,000 • 3 bed • 1 bath • 661 ft²
3 bedroom terraced house for sale in Ashford Close, Hailsham, BN27 — £275,000 • 3 bed • 1 bath • 645 ft²


































































































































