**Standout Features:**
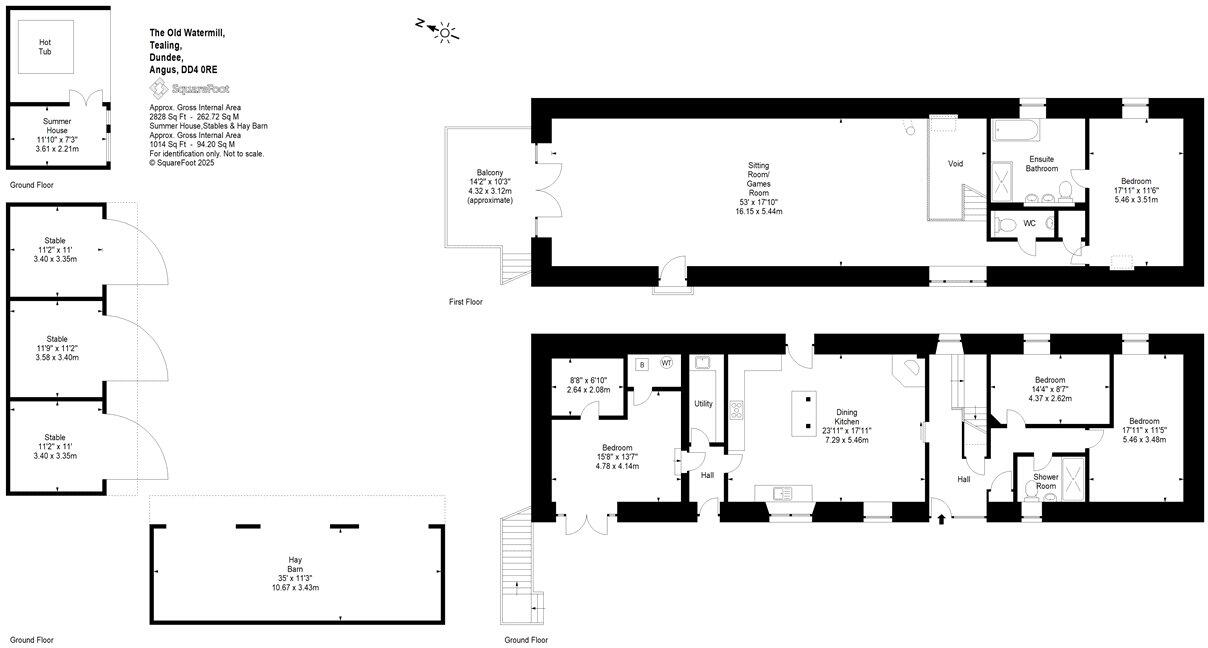
- Spacious 4-bedroom, 3-bathroom detached barn conversion.
- Bright rooms with ample reception space; potential for further enhancement.
- Newly built stable blocks and approximately 4.58 acres of paddocks.
- Beautiful countryside views, ideal for horse owners or families seeking outdoor activities.
- Excellent rural setting just 15 minutes from Dundee city center.
**Summary:**
Discover the charm of The Old Watermill, a stunning barn conversion nestled in the serene Angus countryside, just a short drive from Dundee. Spanning an impressive 3,229 square feet, this spacious home boasts bright, well-proportioned living spaces, including a generous kitchen/dining/living room equipped with a woodburning stove—perfect for family gatherings. Enjoy the comfort of a lower level featuring two double bedrooms and an ensuite, alongside a first-floor sitting/games room with French doors leading to a scenic balcony.
Set on a sprawling plot, the property includes beautifully maintained gardens and extensive paddocks, ideal for equestrian enthusiasts or those looking to cultivate a smallholding lifestyle. With newly constructed stables and ample outdoor space, this property presents fantastic potential for future renovations or customization.
While the home is well-maintained, be prepared for the slower broadband speeds and the higher council tax typical of such rural settings. This unique opportunity in a tranquil yet accessible location won't last long—seize the chance to own your own piece of countryside paradise!
4 bedroom semi-detached house for sale in Old Mill House, Port Allen, Errol, Perth, PH2 — £795,000 • 4 bed • 3 bath • 8142 ft²
4 bedroom semi-detached house for sale in 8 Seggieden Steadings, Whigstreet. DD8 2JZ, DD8 — £239,000 • 4 bed • 1 bath • 1141 ft²
4 bedroom barn conversion for sale in Inverkeilor, Arbroath, DD11 — £290,000 • 4 bed • 2 bath
5 bedroom detached house for sale in Mill Of Brathinch, Angus, DD9 — £695,000 • 5 bed • 3 bath • 4385 ft²
4 bedroom semi-detached house for sale in Balbeuchley Steading, Auchterhouse, Angus, DD3 — £285,000 • 4 bed • 2 bath • 1259 ft²
4 bedroom detached villa for sale in Mains of Kirkbuddo Farmhouse, Near Inverarity, by Forfar, DD8 — £585,000 • 4 bed • 2 bath • 2153 ft²














































































































