**Standout Features:**
- Imposing detached family home in an exclusive location at Churston.
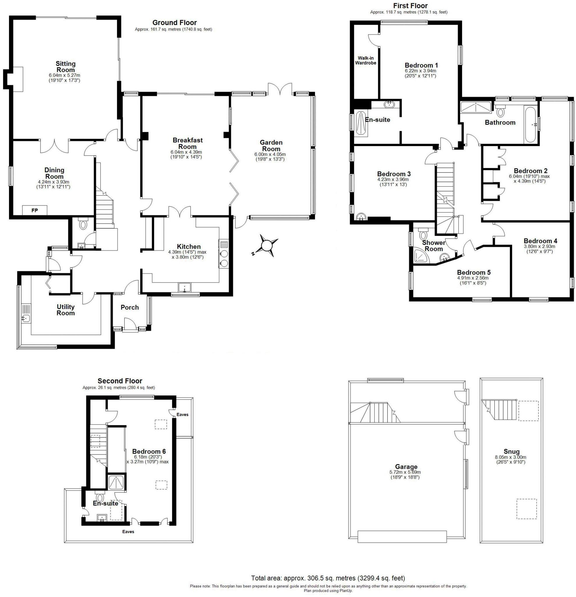
- Six spacious bedrooms, two with en suites, perfect for family comfort.
- Four expansive reception rooms providing flexibility for entertaining.
- A double garage with a snug room above, plus a gated driveway for added privacy.
- Large gardens featuring various seating areas and stunning coastal views.
- Planning permission granted for an additional four-bedroom dwelling (Ref: P/2023/0545).
- Solar panels contributing to sustainability of the home.
**Summary:**
Discover this stunning six-bedroom detached residence, nestled in the prestigious Churston area, offering an exceptional blend of luxury and practicality. Spanning over 3,294 sq. ft., this home boasts four elegant reception rooms, each with breathtaking views, and a beautifully appointed family kitchen with an AGA and granite countertops, ideal for culinary enthusiasts. The spacious layout is designed for effortless entertaining and comfortable family living, including two master suites with en suite baths that serve as serene retreats.
Set within expansive gardens, the property provides multiple outdoor spaces to relax and enjoy the picturesque coastal and gardening vistas, creating a perfect escape. This impressive home is not only a family haven but also presents a unique investment opportunity with planning permission for an additional dwelling, enhancing its future potential.
Conveniently located near top-performing schools like Churston Ferrers Grammar and with excellent transport links, this property promises both a lifestyle of comfort and accessibility. With very low crime rates and a wealth of amenities including local shops and leisure facilities close by, this luxury residence is ideal for families seeking a tranquil yet well-connected environment. Don’t miss your chance to own this exceptional property that combines elegance, security, and undeniable charm—schedule your viewing now!
5 bedroom detached house for sale in Tor Close, Paignton, Devon, TQ4 — £650,000 • 5 bed • 3 bath • 2401 ft²
5 bedroom detached house for sale in Brakeridge Close Churston Ferrers Brixham, TQ5 — £945,000 • 5 bed • 4 bath • 3767 ft²
4 bedroom detached house for sale in Lower Fowden, Paignton, TQ4 — £550,000 • 4 bed • 2 bath • 1596 ft²
3 bedroom detached bungalow for sale in Blue Waters Drive Broadsands Paignton, TQ4 — £779,950 • 3 bed • 2 bath • 1874 ft²
5 bedroom detached house for sale in Dartmouth Road, Paignton, Devon, TQ4 6LH, TQ4 — £895,000 • 5 bed • 5 bath • 2917 ft²
4 bedroom detached house for sale in Broadpark Road, Torquay, TQ2 — £750,000 • 4 bed • 2 bath • 1841 ft²














































































