Characterful one-bedroom ground-floor flat with private garden and long lease, close to Selhurst station.
Own front door and sole use of rear garden
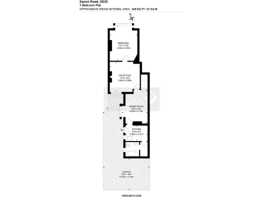
This ground-floor one-bedroom conversion on Saxon Road pairs Victorian character with practical modern comforts. The flat has its own front door, stripped and varnished floorboards, a decorative Victorian-style electric fireplace and sole use of a rear garden — rare for a one-bedroom in the area. At about 549 sq ft it feels roomy for a starter home and benefits from central heating and a very long lease (991 years).
Transport links are a clear strength: Selhurst station is a short walk (approx. 5 minutes) and several local bus routes serve nearby roads, making commutes into central London straightforward. Local green spaces including Whitehorse Road Recreation Ground and South Norwood Country Park are within easy reach, as are shops, cafes and schooling options, which suits young commuters and first-time buyers.
Buyers should note a few practical points. The building’s solid brick walls likely lack cavity insulation, and the double glazing appears to pre-date 2002 — both are common in period stock and may mean some retrofit work to improve energy efficiency. The wider area records above-average crime and higher deprivation indices; prospective purchasers should view at different times and check local data if safety and neighbourhood investment are priorities.
Overall this is a well-presented, characterful one-bedroom with private outside space and excellent transport links. It will suit a first-time buyer or investor seeking a turn-key period conversion with potential to add value through modest energy-efficiency upgrades and cosmetic modernisation.
2 bedroom flat for sale in Stanger Road, South Norwood, London, SE25 — £410,000 • 2 bed • 1 bath • 662 ft²
1 bedroom flat for sale in Selhurst Road, London, SE25 — £220,000 • 1 bed • 1 bath • 679 ft²
1 bedroom ground floor flat for sale in Selhurst Road, LONDON, SE25 — £240,000 • 1 bed • 1 bath • 465 ft²
1 bedroom flat for sale in 7 Upper Grove, South Norwood, SE25 — £200,000 • 1 bed • 1 bath • 453 ft²
1 bedroom flat for sale in Park Road, South Norwood, SE25 — £320,000 • 1 bed • 1 bath • 607 ft²
1 bedroom flat for sale in Prince Road, London, SE25 — £250,000 • 1 bed • 1 bath • 399 ft²














































