Large plot with planning upside for developers and investors.
Detached two-storey office on 0.38-acre plot
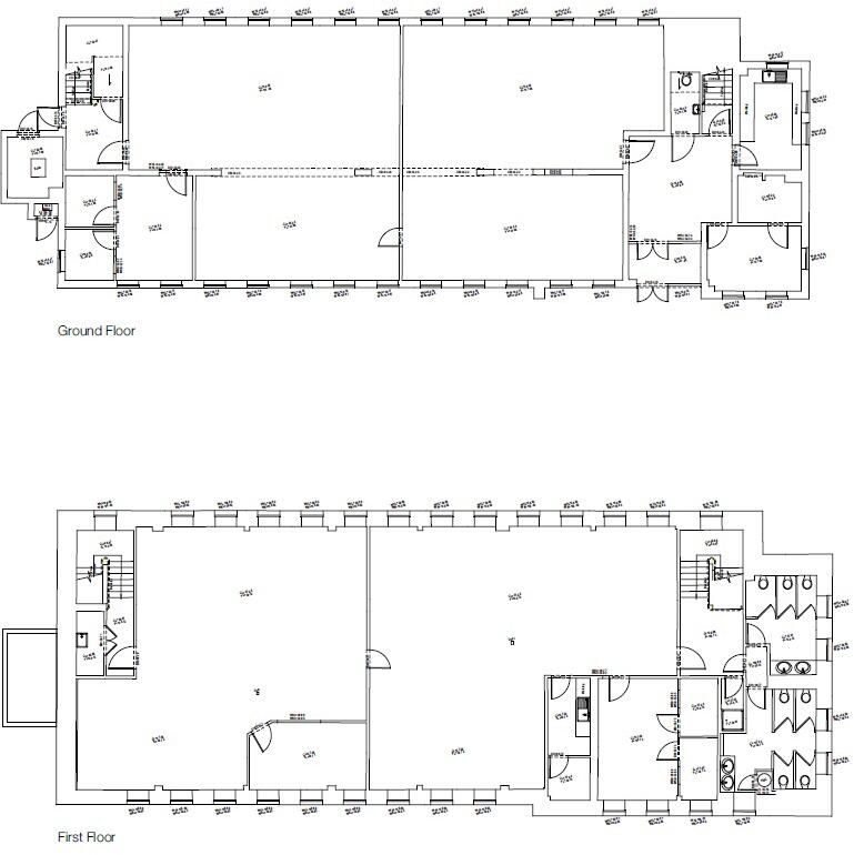
Millbrook House is a detached, two-storey office on a 0.38-acre plot in East Malling, offered freehold with vacant possession. The building provides well-fitted Class E office accommodation across large open-plan floors, air conditioning, LED lighting, gas central heating, shower facilities and 35+ car parking spaces — a straightforward income or occupation asset in a popular commuter village.
The site’s principal value drivers are redevelopment and conversion potential. There has been a positive response from the local authority on a comprehensive office redevelopment and the property sits within Class E, with scope for Permitted Development to residential or a full redevelopment capable of delivering an estimated 8–10 dwellings, subject to consents. Its location 1.2 miles from West Malling and close to East Malling station adds commuter appeal.
Buyers should factor in material considerations: a medium flooding risk, two separate rateable assessments producing estimated rates payable of about £37,675 for 2025/26, and mixed EPCs (Ground Floor C 60; First Floor D 97). Any conversion or redevelopment will require planning and possibly further site investigation; the seller’s positive council dialogue has not been taken forward. The property is offered at unconditional offers in excess of £1,255,000.
3 bedroom detached house for sale in Mill Street, East Malling, West Malling, Kent, ME19 — £700,000 • 3 bed • 3 bath • 417 ft²
3 bedroom semi-detached house for sale in Elm Crescent, East Malling, West Malling, ME19 — £400,000 • 3 bed • 1 bath • 969 ft²
Office for sale in High Weald House, Petteridge Lane, Matfield, TN12 7LT, TN12 — £275,000 • 1 bed • 1 bath • 928 ft²
Office for sale in Cob Tree House, Oldbury Lane, Sevenoaks, TN15 9DA, TN15 — £720,000 • 1 bed • 1 bath • 3075 ft²
3 bedroom semi-detached house for sale in Upper Mill, East Malling, West Malling, ME19 — £600,000 • 3 bed • 2 bath • 1320 ft²
5 bedroom detached house for sale in Epsom Close, West Malling, ME19 — £600,000 • 5 bed • 3 bath • 1729 ft²






























































