Spacious modern two-bedroom with balconies near the Thames and village amenities.
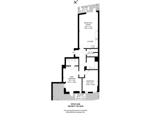
Fifth-floor flat with two private balconies and bright open-plan living
Circa 1,004 sq ft — unusually large for a two-bedroom apartment
Two sizable double bedrooms, one with en-suite bathroom
Secure residential block with gym, concierge and communal gardens
Leasehold with a very long lease remaining (989 years)
Heated by a community scheme — check running costs and terms
Very low flood risk; excellent mobile and broadband connectivity
Wider neighbourhood classed as deprived — consider resale perceptions
Set on the fifth floor, this modern two-bedroom flat offers bright living with a contemporary open-plan kitchen and two private balconies. The generous living space (circa 1,004 sq ft) and two sizeable double bedrooms — one with an en-suite — make the layout flexible for sharers, couples or a small family.
The building provides practical on-site amenities including a gym, concierge and well-maintained communal gardens, plus very low flood risk and excellent mobile and broadband connectivity. The property sits close to the River Thames and Greenwich Village, with a wide choice of shops, cafés and restaurants within easy walking distance.
Practical points to note: the property is leasehold (long lease of 989 years) and heated via a community heating scheme. The wider area is classified as deprived, which may affect resale perceptions despite the block’s secure setting and local conveniences. Overall this is a contemporary, well-sized flat in a central Greenwich location with strong lifestyle appeal and clear investment potential.
2 bedroom flat for sale in Telegraph Avenue, Greenwich, London, SE10 — £600,000 • 2 bed • 1 bath • 857 ft²
2 bedroom flat for sale in Atlantic Point, Greenwich, LONDON, SE10 — £630,000 • 2 bed • 2 bath • 791 ft²
2 bedroom flat for sale in River Gardens Walk, Greenwich, London, SE10 — £570,000 • 2 bed • 1 bath • 767 ft²
2 bedroom flat for sale in Rennie Street, Greenwich, London, SE10 — £500,000 • 2 bed • 2 bath • 913 ft²
2 bedroom flat for sale in Pilot Walk, North Greenwich, London, SE10 — £600,000 • 2 bed • 2 bath • 784 ft²
2 bedroom flat for sale in Peartree Way, North Greenwich, London, SE10 — £425,000 • 2 bed • 2 bath • 885 ft²


























































































































































































































































































































