Two double bedrooms and secure parking near Bournemouth beach.
South-facing covered balcony ideal for evening sun
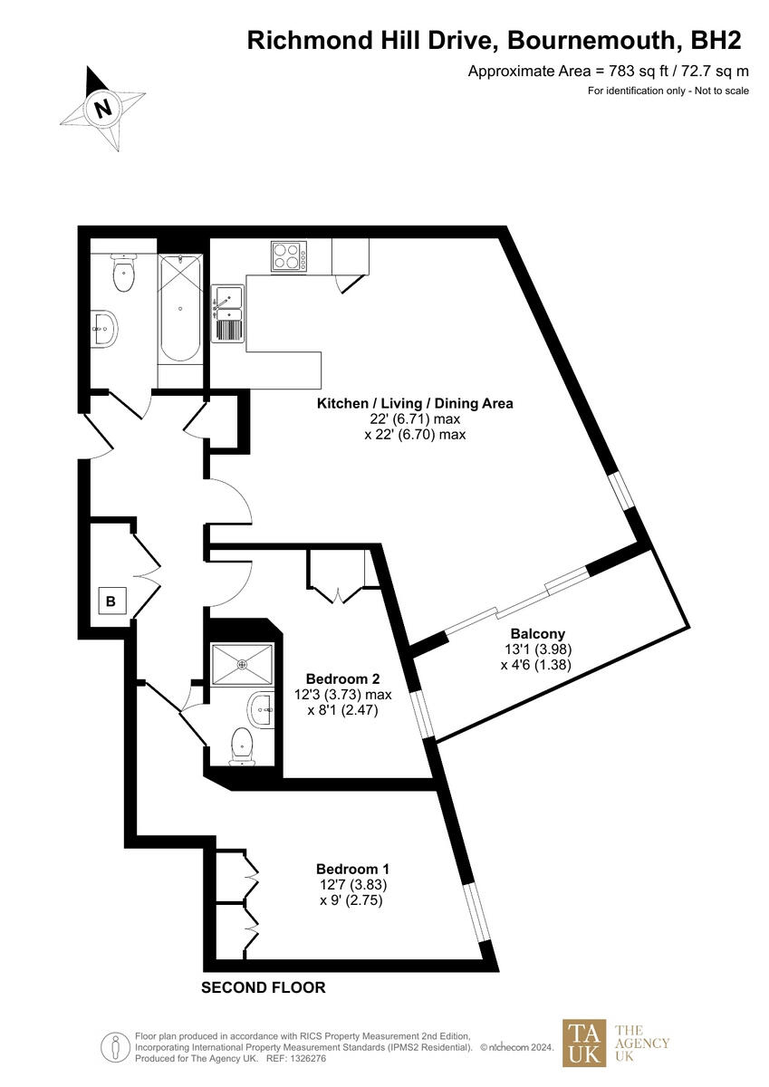
Set on the second floor of a modern, iconic building, this bright two-bedroom apartment offers easy coastal living just a short walk from Bournemouth beach. The open-plan living, dining and kitchen area extends to a covered south-facing balcony, providing reliable sun and an outdoor space for relaxing or alfresco meals. The principal bedroom has an en suite shower and there is a separate guest bathroom.
Practical features include secure designated off-street parking, a passenger lift, video entry system and well-kept communal grounds. The property is an average-sized 783 sq ft with double glazing and a traditional layout, making it an adaptable home for first-time buyers, weekend or second-home owners.
Buyers should note this is a leasehold apartment with 104 years remaining and primary heating from an electric boiler and radiators. The immediate area scores high for crime and is classed as deprived, and local broadband speeds are average. These factors may influence insurance, security needs and resale considerations.
Overall, this apartment suits buyers seeking a low-maintenance, coastal-central base with parking and lift access — offering immediate lifestyle benefits alongside practical trade-offs to weigh when budgeting and planning improvements.
2 bedroom apartment for sale in Upper Terrace Road, Bournemouth, BH2 — £270,000 • 2 bed • 2 bath • 845 ft²
2 bedroom apartment for sale in Richmond Hill Drive, Bournemouth, BH2 — £250,000 • 2 bed • 2 bath • 743 ft²
2 bedroom apartment for sale in Cranborne Road, Bournemouth, BH2 — £275,000 • 2 bed • 2 bath • 605 ft²
2 bedroom flat for sale in Richmond Hill Drive, Bournemouth, BH2 — £210,000 • 2 bed • 2 bath • 831 ft²
2 bedroom flat for sale in Richmond Hill Drive, Bournemouth, BH2 — £319,950 • 2 bed • 2 bath • 987 ft²
2 bedroom flat for sale in Argyll Road, Bournemouth, Dorset, BH5 — £235,000 • 2 bed • 2 bath • 780 ft²


















































































