Move-in ready property with summer house and garage on a quiet cul-de-sac.
Four well-proportioned bedrooms, newly renovated throughout
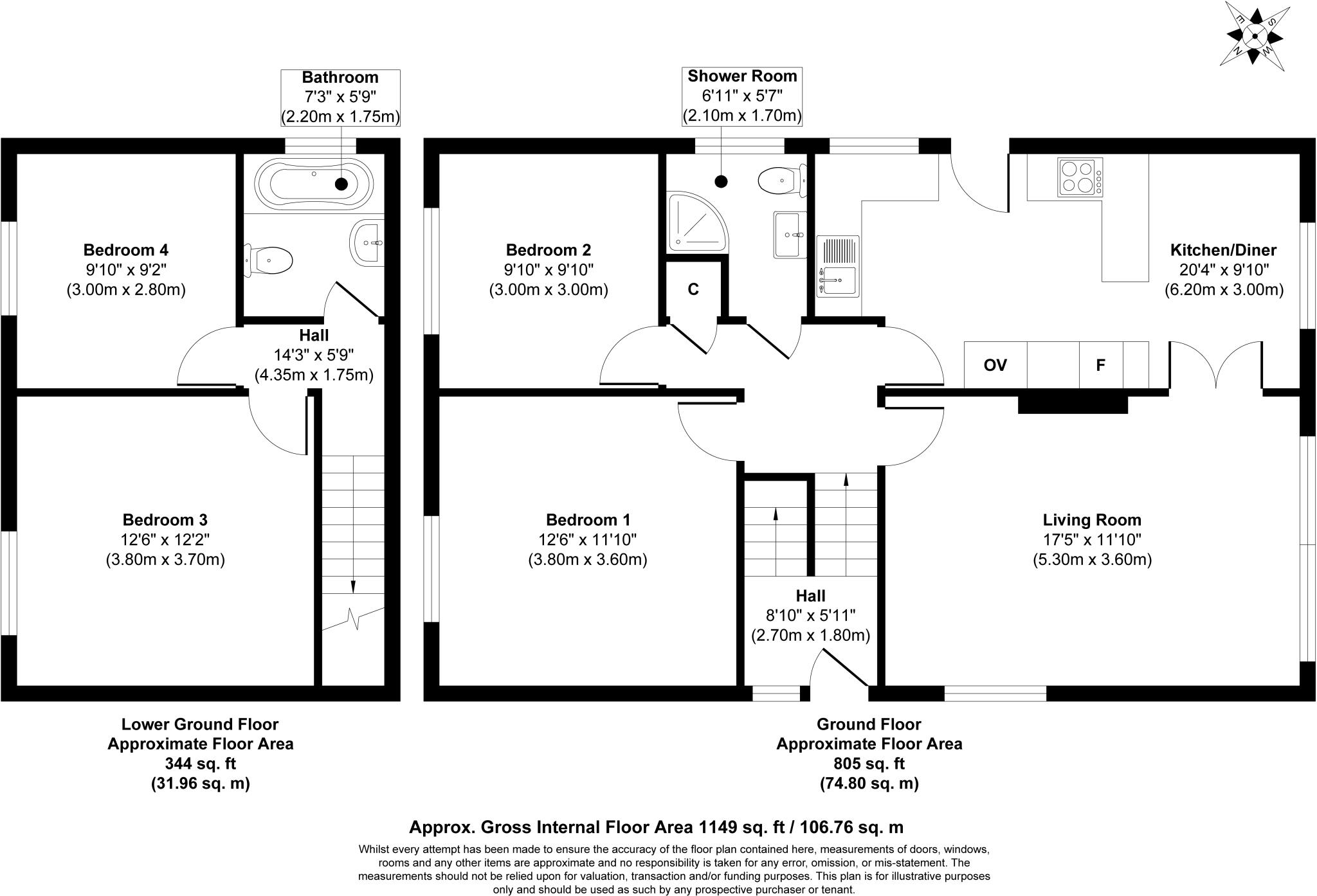
A fully renovated four-bedroom detached house offering move-in ready accommodation in a quiet Torquay cul-de-sac. Interior upgrades include new double-glazed windows, a new boiler, fresh neutral decoration and new laminate flooring throughout, creating bright, low-maintenance living on both floors. The layout includes a modern kitchen/diner, comfortable living room, ground-floor bathroom and an upstairs shower room.
Outside spaces are practical and family-friendly: a private, enclosed rear garden that’s easy to maintain, a remodelled front garden with an al-fresco seating area, driveway parking and a garage. A custom-built summer house with full electrics adds flexible space for a home office, studio or playroom.
Practical strengths include freehold tenure, mains gas central heating, fast broadband and excellent mobile signal. The house sits in an established, generally affluent suburb close to a mix of primary and secondary schools (including two grammar schools rated in the top ten percent). Note the area is classed toward older residents, which may affect local community character.
Honest considerations: crime levels in the area are reported above average, and while the home is recently renovated there is no detailed history of the window installation date. The property size is average for its class (about 1,149 sq ft) — good for family use but not oversized. Council tax is moderate. Overall, this is a tidy, modern detached home suited to families or professionals wanting a ready-to-use property with useful outbuilding space.
4 bedroom detached house for sale in Sandpiper Way, The Willows, Torquay, Devon, TQ2 — £450,000 • 4 bed • 3 bath • 962 ft²
4 bedroom detached house for sale in Grosvenor Avenue, Torquay, TQ2 — £500,000 • 4 bed • 2 bath • 1711 ft²
4 bedroom detached house for sale in Southfield Avenue, Preston, Paignton, Devon, TQ3 — £455,000 • 4 bed • 3 bath • 1600 ft²
4 bedroom semi-detached house for sale in Shiphay Park Road, Torquay, TQ2 — £450,000 • 4 bed • 2 bath • 1327 ft²
4 bedroom detached house for sale in Newton Road, Torquay, TQ2 — £475,000 • 4 bed • 2 bath • 1324 ft²
4 bedroom detached house for sale in Higher Lincombe Road, Torquay, TQ1 — £860,000 • 4 bed • 3 bath • 1800 ft²


































































