Move-in ready family home with large garden and double garage close to station.
Chain free with a long 933‑year lease
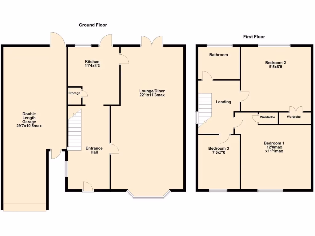
Spacious 22ft lounge/diner with French doors to garden
Large, landscaped rear garden with covered seating area
Double‑length garage (29'7") with power and light
Driveway parking for multiple vehicles; large frontage
Modern Worcester Bosch boiler and alarm system installed
Single family bathroom only — may need extension or additional WC
Average overall size; generally well maintained internally
This well-presented three-bedroom semi-detached house in Kingswood, Basildon offers practical family living on an average-sized plot with generous outdoor space. The ground floor features a spacious 22ft lounge/diner and a good-size kitchen, providing flexible day-to-day living and entertaining space. A modern family bathroom serves three bedrooms on the first floor; two bedrooms include built-in wardrobes and loft access is provided for extra storage.
Outside, the property excels: a larger-than-average double-length garage with power and lighting, wide driveway parking and a landscaped rear garden with a covered seating area make it easy to store vehicles, run a workshop or entertain outdoors in all weathers. The long lease (933 years) and no onward chain simplify purchase arrangements for buyers.
Location is a strong selling point — close to Basildon train station, town centre, hospital and well-rated local schools including Woodlands. Practical extras include a modern Worcester Bosch boiler and an alarm system with fob and code entry. There is a single family bathroom for three bedrooms, which some buyers may want to change or expand in future.
Overall this home suits families or first-time buyers seeking move-in ready accommodation with scope to personalise. The property presents immediate convenience and usable living space with low short-term maintenance needs, while also offering modest potential for future refurbishment of wet rooms or internal layout if desired.
4 bedroom semi-detached house for sale in Swallow Dale, 'The Bird's Estate', Kingswood, SS16 — £535,000 • 4 bed • 3 bath • 1223 ft²
3 bedroom semi-detached house for sale in Gordon Road, Basildon, Essex, SS14 — £350,000 • 3 bed • 1 bath • 1019 ft²
2 bedroom terraced house for sale in Gobions, Basildon, SS16 — £290,000 • 2 bed • 1 bath • 689 ft²
3 bedroom semi-detached house for sale in Beeleigh Cross, Fryerns, SS14 — £375,000 • 3 bed • 1 bath • 969 ft²
4 bedroom terraced house for sale in Gun Hill Place, Kingswood, The Woodlands Estate, SS16 — £375,000 • 4 bed • 2 bath • 1696 ft²
3 bedroom semi-detached house for sale in Sparrows Herne, KINGSWOOD, Basildon, Essex, SS16 — £485,000 • 3 bed • 1 bath • 883 ft²














































































































































































































