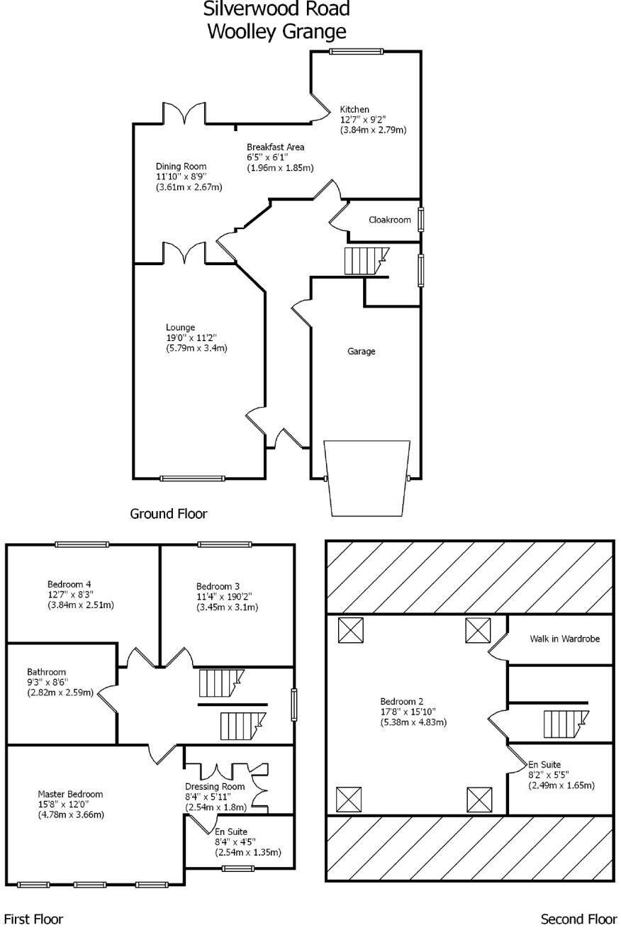
**Standout Features:**
- Spacious 4-bedroom detached home over three floors
- Large kitchen diner ideal for family gatherings and entertaining
- Two bedrooms with stylish en-suites
- Off-street parking and integral garage
- Located in a sought-after area with excellent schools and amenities
- Leasehold tenure
**Potential Concerns:**
- Leasehold status may have associated costs
- Above-average crime rate in the local area
Discover your family's ideal home in the heart of Woolley Grange! This modern 4-bedroom detached property offers a generous layout spread across three well-designed floors, perfect for contemporary living. Step inside to find a bright and airy lounge, a large kitchen diner suited for family meals and entertaining guests, and four spacious bedrooms—two with chic en-suite bathrooms. Outside, the property features off-street parking, an integral garage, and a rear garden, creating an inviting space for relaxation.
Positioned in a desirable area, you'll appreciate the close proximity to highly-rated primary and secondary schools, as well as charming local shops, restaurants, and picturesque countryside walks—combining the best of town and country living. With its effective layout and modern amenities, this home is ideal for families looking for comfort and convenience. Note that its leasehold status may incur annual costs, so due diligence is advised. Don’t miss out—homes like this are in high demand! Act quickly to secure your viewing.
4 bedroom detached house for sale in Long Pye Close, Woolley Grange, Barnsley, S75 — £410,000 • 4 bed • 2 bath • 1260 ft²
4 bedroom detached house for sale in Bloomingdale Court, Woolley Grange, Barnsley, West Yorkshire, S75 — £350,000 • 4 bed • 2 bath • 873 ft²
4 bedroom detached house for sale in John Street Way, Wombwell, Barnsley, S73 8FT, S73 — £279,300 • 4 bed • 2 bath • 796 ft²
3 bedroom detached house for sale in Rosefield Avenue, Woolley Grange, Barnsley, West Yorkshire, S75 — £260,000 • 3 bed • 2 bath • 1065 ft²
5 bedroom detached house for sale in Silverwood Road, Woolley Grange, Barnsley, S75 — £380,000 • 5 bed • 5 bath • 1851 ft²
3 bedroom town house for sale in Wheatley Drive, Woolley Grange, S75 — £230,000 • 3 bed • 2 bath • 894 ft²


































































































