Low-maintenance suburban flat with parking close to Norwich amenities.
Private street-level entrance and first-floor living
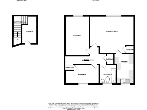
A neatly presented first-floor two-bedroom flat with its own street-level entrance, tucked into a popular Old Catton location. The layout is compact and low-maintenance, with a bright lounge/diner, practical fitted kitchen and contemporary bathroom — ready to move into for first-time buyers or landlords seeking a straightforward let.
Practical features include an allocated off-road parking space, access to communal gardens, double glazing and fast full-fibre broadband. The long lease (approximately 116 years remaining) and a below-average service charge make ownership predictable and manageable.
Buyers should note the property is modest in size (around 473 sq ft) and heated by electric storage heaters, which can be more expensive to run than gas. Ground rent is high (£112pcm), and the glazing dates from before 2002, so future upgrade costs are possible. Council Tax sits in Band A, keeping running costs low compared with many nearby homes.
Overall this flat suits a first-time buyer wanting a low-upkeep starter home in a well-connected Norwich suburb, or an investor looking for a simple tenancy proposition near local amenities and schools. Viewing is recommended to assess space and running-cost suitability.
2 bedroom flat for sale in Defiant Road, NR6 — £160,000 • 2 bed • 1 bath • 525 ft²
2 bedroom flat for sale in Dunwood Drive, Old Catton, NR6 — £150,000 • 2 bed • 1 bath
2 bedroom maisonette for sale in Dunwood Drive, Norwich, NR6 — £150,000 • 2 bed • 1 bath • 478 ft²
2 bedroom flat for sale in Ives Road, Norwich, NR6 — £140,000 • 2 bed • 1 bath • 657 ft²
2 bedroom flat for sale in The Paddocks, NORWICH, Norfolk, NR6 — £130,000 • 2 bed • 1 bath • 506 ft²
2 bedroom flat for sale in Juby Court, Old Catton, NR6 — £82,500 • 2 bed • 1 bath • 732 ft²






































