**Standout Features:**
- Modern detached family home built in 2014
- Enviable corner plot with private low-maintenance garden
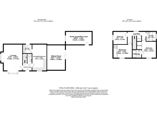
- Spacious layout with two large reception rooms
- Gourmet kitchen linked to utility room
- Master bedroom with en-suite bathroom
- Driveway with parking for several cars
- Garage converted to a gym/office space
- Excellent condition, ready to move into
**Summary:**
This impressive three-bedroom detached home on Brindley Avenue offers a perfect blend of modern living and potential, ideal for families or investors. Set on an enviable corner plot, the property boasts a spacious layout highlighted by welcoming dual reception rooms and a contemporary kitchen/dining area, along with a convenient utility room and a downstairs WC. The master bedroom features an en-suite, while two additional bedrooms provide ample space for family or guests.
Outdoors, enjoy a private, low-maintenance garden perfect for relaxation or play. The converted garage serves as a versatile gym or office, catering to your work-from-home needs. The property is ideally located near City Road, providing easy access to amenities and transport links to Birmingham City Centre, the Midland Metropolitan Hospital, and the motorway network, making this a smart choice for busy lifestyles.
Although the area has reported slightly above-average crime rates, the home's exceptional condition and proximity to outstanding schools like Shireland Hall Primary Academy add to its appeal. With rapid broadband and fair mobile signal strength, this residence supports modern connectivity needs. Don't miss the chance to secure this exclusive property—schedule your viewing today before it's gone!
3 bedroom detached house for sale in Brindley Avenue, Birmingham, West Midlands, B16 — £385,000 • 3 bed • 3 bath • 1346 ft²
4 bedroom detached house for sale in Chances Street, Edgbaston, B16 — £400,000 • 4 bed • 2 bath • 304 ft²
5 bedroom detached house for sale in Roebuck Road, Birmingham, B16 — £615,000 • 5 bed • 3 bath • 1738 ft²
4 bedroom detached house for sale in Brook Way, Birmingham, B16 — £425,000 • 4 bed • 2 bath • 1136 ft²
5 bedroom detached house for sale in Roebuck Road, Edgbaston, B16 — £425,000 • 5 bed • 3 bath • 1501 ft²
3 bedroom semi-detached house for sale in Croyde Avenue, Birmingham, B42 — £335,000 • 3 bed • 1 bath • 1536 ft²


































































