Large quarter-acre plot with countryside views and flexible living spaces.
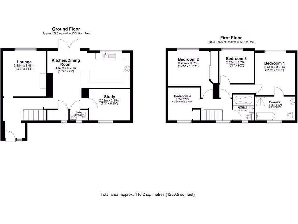
Extended 4-bedroom semi-detached house with en-suite primary bedroom
Set in a quiet cul-de-sac in desirable Orwell, this extended four-bedroom semi offers practical family living and generous outdoor space. The ground floor has a bright entrance, an open-plan kitchen/dining room with French doors to the garden, a lounge with wood-burning stove, and a flexible study/playroom. Upstairs are four well-proportioned bedrooms, a large primary en-suite and a separate family bathroom.
The plot is a standout feature — approaching a quarter of an acre with an enclosed, landscaped rear garden, patio, fruit trees and room to play. Driveway parking for multiple vehicles and gated side access add convenience. The property overlooks open fields, giving a rural aspect and plenty of privacy.
There is clear potential to extend further (subject to planning permission) for buyers wanting additional living space or value-add. The house is chain-free, has double glazing and fast broadband, and sits within easy reach of well-rated schools and local amenities.
Buyers should note a few practical points: the property is heated by an oil-fired boiler (private fuel supply), it dates from the 1950s–60s so some updating may be desirable, and the EPC is rated D. Any extension or major alteration will require the appropriate planning consents.
3 bedroom semi-detached house for sale in Meadowcroft Way, Orwell, SG8 — £390,000 • 3 bed • 2 bath • 1312 ft²
5 bedroom detached house for sale in Pearmains Close, Orwell, SG8 — £800,000 • 5 bed • 2 bath • 2052 ft²
3 bedroom semi-detached house for sale in Hurdleditch Road, Orwell, Royston, SG8 — £400,000 • 3 bed • 1 bath • 776 ft²
3 bedroom link detached house for sale in Brookside, Orwell, SG8 — £420,000 • 3 bed • 2 bath • 1115 ft²
3 bedroom semi-detached house for sale in Meadowcroft Way, Orwell, Royston, SG8 — £375,000 • 3 bed • 2 bath • 1066 ft²
5 bedroom detached house for sale in Town Green Road, Orwell, Royston, SG8 — £750,000 • 5 bed • 2 bath • 1467 ft²


































































































