Compact sea-facing flat ideal for low-maintenance coastal living.
Direct panoramic sea views from Seaford Head to Newhaven Harbour
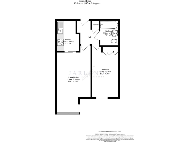
Enjoy panoramic, direct sea views from this compact one-bedroom apartment on Seaford Esplanade, offered chain free and exclusively for over-60s. The flat sits in a modern block with lift access to all floors, communal parking and a south-facing aspect that captures sunlight and coastal panoramas from Seaford Head to Newhaven Harbour.
Practical running costs are a strong selling point: a very long lease (959 years), share of freehold and a low service charge of £119.12 per month (billed six-monthly), which includes water supply and waste water. The property is close to rail and bus links, shops and local amenities, and has excellent mobile signal — useful for staying connected.
The apartment is modest in size (approximately 437 sq ft) with an open-plan layout, one bedroom and one bathroom. There is no central heating system recorded; electric heaters are assumed. Double glazing is present but install date is unknown. Buyers should expect a compact interior that will suit a single occupant or couple seeking low-maintenance coastal living rather than generous living space.
Material considerations: this is a retirement development with restrictive covenants (over-60s only). Local crime statistics are higher than average, and the property may benefit from some cosmetic updating. Flood risk is low and council tax is inexpensive (Band B). Viewings are recommended for buyers prioritising direct sea views, long lease security and low monthly outgoings.
1 bedroom retirement property for sale in Esplanade, Seaford, BN25 — £165,000 • 1 bed • 1 bath • 349 ft²
1 bedroom retirement property for sale in Claremont Road, Seaford, BN25 — £125,000 • 1 bed • 1 bath • 415 ft²
1 bedroom retirement property for sale in Marine Parade, SEAFORD, BN25 — £125,000 • 1 bed • 1 bath • 464 ft²
1 bedroom retirement property for sale in Eversley Court, Seaford, BN25 — £180,000 • 1 bed • 1 bath • 570 ft²
1 bedroom retirement property for sale in Merryfield Court, Seaford, BN25 — £80,000 • 1 bed • 1 bath • 441 ft²
2 bedroom flat for sale in Dane Close, Seaford, BN25 — £240,000 • 2 bed • 1 bath • 530 ft²


































































