Spacious family living with large garden and parkland outlook.
Newly renovated five-bedroom detached family home
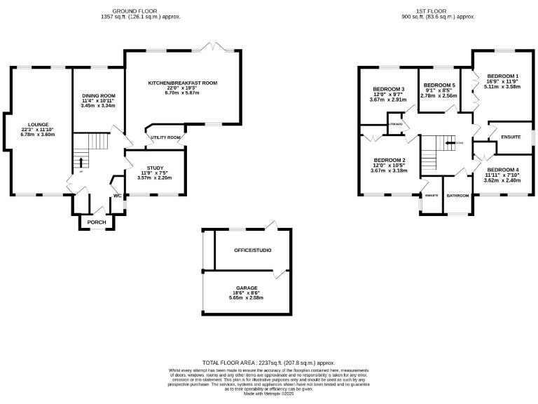
This newly renovated five-bedroom detached home offers more than 2,200 sq ft of flexible family accommodation across two floors. The property sits on a large plot with a private south-westerly garden backing onto open parkland, providing a peaceful outlook and strong indoor-outdoor flow from the spacious kitchen/breakfast room and lounge.
Practical family features include three reception rooms, two en-suites, a utility room, sizeable entrance hall and off-street parking for multiple vehicles. A partially converted double garage already provides a home office/studio while the remaining garage space retains vehicle storage, power and lighting — useful for hobbies or further conversion (subject to approvals).
Recent upgrades include a replacement Worcester boiler, new hot water cylinder, Hive controls, smart meters and full‑fibre broadband. The house presents as well-maintained with double glazing, modern fitted kitchen and generous room proportions throughout, making it move-in ready for families seeking space and local schooling options.
Buyers should note important drawbacks: the property sits in a high flooding-risk area, which may affect insurance and future flood mitigation costs. Council tax is in a higher band and running costs should be factored in. Despite being newly renovated, some buyers may wish to confirm dates for glazing and insulation details for complete clarity.
5 bedroom detached house for sale in Whitesands Way, Hunsbury Meadows, NN4 — £725,000 • 5 bed • 2 bath • 2233 ft²
3 bedroom detached house for sale in Brindlestone Close, Hunsbury Meadows, Northampton, NN4 — £374,995 • 3 bed • 2 bath • 1125 ft²
4 bedroom detached house for sale in Hassocks Hedge, Hunsbury Meadows, Northampton, NN4 — £512,500 • 4 bed • 2 bath • 2014 ft²
5 bedroom detached house for sale in Bramble End, Northampton, Northamptonshire, NN4 — £525,000 • 5 bed • 3 bath • 2280 ft²
4 bedroom detached house for sale in Grangewood, East Hunsbury, Northampton, NN4 — £439,950 • 4 bed • 3 bath • 1470 ft²
4 bedroom detached house for sale in Cobblestone Court, Northampton, NN4 — £435,000 • 4 bed • 2 bath • 504 ft²


















































































