**Standout Features:**
- Prime location within Cannock Chase, an Area of Outstanding Natural Beauty
- Exclusive road with approximately 5 acres of grounds
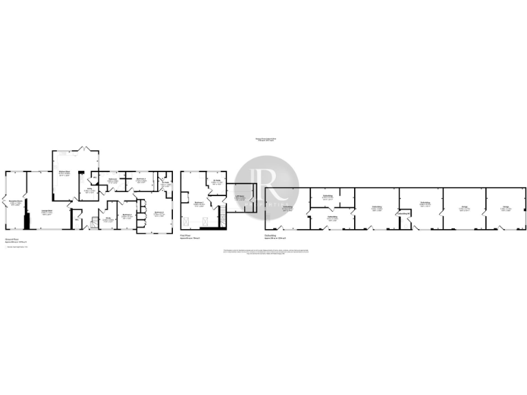
- Five spacious bedrooms and three bathrooms
- Generous living areas, including two large reception rooms and a well-appointed kitchen
- Extensive outbuildings and ample gated parking
- Chain-free sale
**Potential Concerns:**
- Property built in 1920; may require updates or renovations
- Average broadband speeds and mobile signal
- Higher council tax bracket
Nestled in the picturesque Cannock Chase, this stunning detached bungalow offers an exceptional blend of tranquility and modern living—ideal for families seeking both space and natural beauty. Spanning five acres, the grounds include beautifully maintained gardens that transition into serene woodland, making it perfect for outdoor enthusiasts. Inside, the home boasts generous proportions with two large reception rooms, a stylish breakfast kitchen, and five well-sized bedrooms, including two with en suites, ensuring ample room for family and guests alike.
Although the property showcases charm and character from its 1920 build, its condition offers a canvas for potential renovations to fit your personal style. The location not only boasts low crime rates and affluent surroundings but also provides excellent access to nearby schooling and amenities in Rugeley. This home is a rare find, offering peace and privacy without sacrificing convenience. Don't miss out—schedule your viewing today to experience the unique potential of Birchwood.
5 bedroom detached bungalow for sale in West Butts Road, Etching Hill, WS15 — £665,000 • 5 bed • 4 bath • 2205 ft²
3 bedroom detached bungalow for sale in Ivy Lane, Cannock Wood , WS15 — £825,000 • 3 bed • 3 bath • 1486 ft²
4 bedroom detached bungalow for sale in Hagley Road, Rugeley, WS15 — £425,000 • 4 bed • 1 bath • 1650 ft²
3 bedroom detached bungalow for sale in Brocton Heights, Brocton, ST17 — £599,000 • 3 bed • 2 bath • 1378 ft²
4 bedroom detached house for sale in Mount Road, Etchinghill, Rugeley, Staffordshire, WS15 — £730,000 • 4 bed • 3 bath • 3000 ft²
5 bedroom detached house for sale in Penkridge Bank Road, Rugeley, WS15 — £3,900,000 • 5 bed • 5 bath • 8246 ft²


























































































