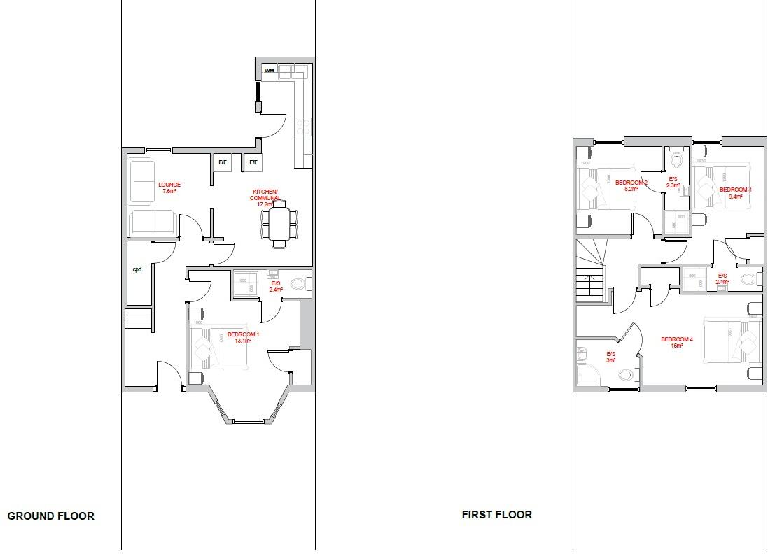
**Key Features:**
- Four bedrooms, all with ensuite bathrooms
- Recently fully refurbished to a high standard
- No HMO license required due to property configuration
- Freehold ownership, no ground rent or service charges
- Current expected rental income of £24,096 per annum
- Two of the four rooms are tenanted, with plans for the others secured soon
This newly renovated, four-bedroom HMO property in Birkenhead offers a lucrative investment opportunity, perfectly suited for discerning investors seeking immediate returns. Each bedroom features its own ensuite, ensuring premium living standards that appeal to professional tenants. As a freehold property, it stands compliant with all necessary safety and building regulations, including gas safety and electrical installation certificates, making it ready to generate income from day one.
While the area experiences above-average crime rates and is classified as a deprived blue-collar terrace, the potential for rental yield is significant at approximately 12%. The property benefits from its proximity to essential amenities, schools, and excellent mobile and broadband connectivity, enhancing its attractiveness to renters. With two rooms currently tenanted and the remaining being secured, this opportunity represents a seamless entry into the buy-to-let market. Don't miss out on this prime investment—properties like this don't stay available for long!







































































































