Easy single-level living on a popular retirement complex, close to town and gardens..
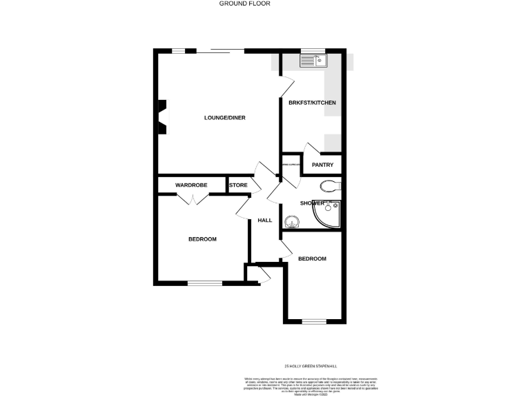
- Single-storey retirement bungalow with two bedrooms
- Immediate vacant possession
- Long lease (125 years from 2004; 2104 years noted)
- Service charge c. £214.75 pcm (c. £2,577 pa)
- Double glazing and gas central heating
- EPC rating D
- Communal lounge, site warden and well-kept gardens
- Area crime above average; local area deprivation noted
A well-presented two-bedroom retirement bungalow on a popular, convenient complex in Stapenhill. Single-storey living and a manageable private garden make this bungalow easy to maintain, while patio doors from the lounge open onto communal gardens for pleasant outdoor space. The accommodation includes a fitted kitchen, shower room and an inviting communal lounge with an on-site warden for added peace of mind.
The property is offered with immediate vacant possession and benefits from double glazing, gas central heating and a long lease (125 years from 2004). With the town centre and local shops, bus links and Stapenhill Water Gardens within easy walking distance, everyday amenities are close at hand and broadband and mobile signals are strong.
Practical points to note: the home sits within a leasehold retirement scheme with a service charge of approximately £214.75 pcm (c. £2,577pa) to cover communal maintenance and facilities. EPC rating D. Crime levels in the area are above average, and the wider neighbourhood scores as deprived in local indices — factors to consider for long-term buyers or investors.
This bungalow will suit downsizers who want single-level, low-maintenance living with communal support and nearby services. It also offers straightforward cosmetic scope for anyone wanting to update finishes to their taste.
2 bedroom terraced bungalow for sale in The Wickets, Burton-on-Trent, DE15 — £135,000 • 2 bed • 1 bath • 497 ft²
2 bedroom terraced bungalow for sale in Holly Green, Burton-on-Trent, DE15 — £139,950 • 2 bed • 1 bath • 550 ft²
2 bedroom semi-detached bungalow for sale in The Wickets, Stapenhill, Burton-on-Trent, DE15 — £125,000 • 2 bed • 1 bath
2 bedroom semi-detached bungalow for sale in New Street, Church Gresley, DE11 — £152,000 • 2 bed • 1 bath • 517 ft²
2 bedroom bungalow for sale in Chestnut Green, Church Gresley, Swadlincote, DE11 — £150,000 • 2 bed • 1 bath • 518 ft²
2 bedroom bungalow for sale in Chestnut Green, Church Gresley, DE11 — £157,000 • 2 bed • 1 bath • 539 ft²






























































