Chain-free two-bedroom Victorian home with garden and strong commuter links.
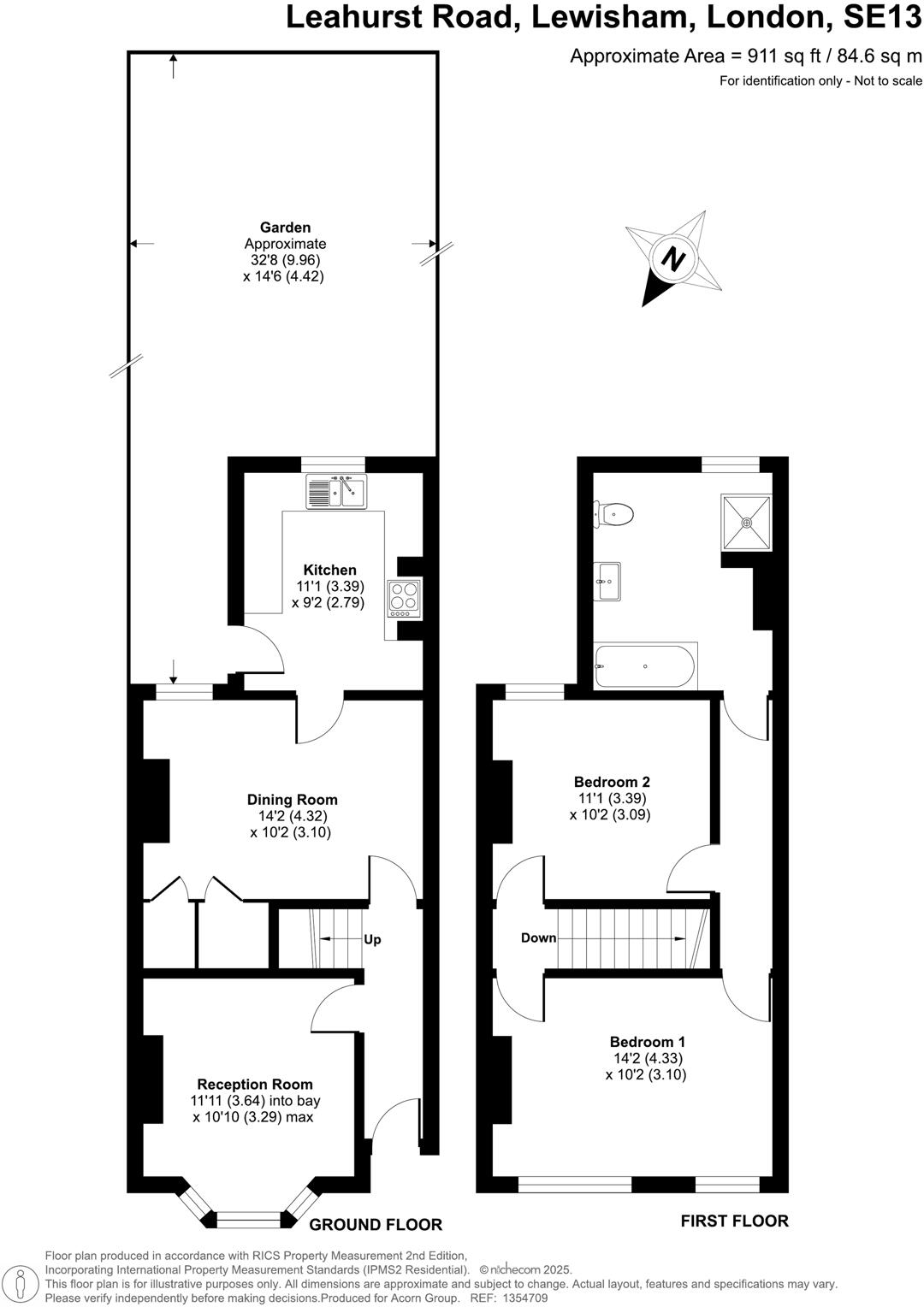
Large 911 sq ft interior across two floors, generous room proportions
Two double bedrooms and separate family bathroom upstairs
Two reception rooms and U-shaped kitchen with garden access
Private rear garden; small plot but good outdoor space
Chain-free freehold sale — straightforward purchase route
Built c.1900s with solid brick walls; likely needs insulation upgrades
Medium flood risk and above-average local crime; consider insurance
Area is deprived but well-connected, strong commuter links and schools
This spacious two-bedroom Victorian terraced house on Leahurst Road offers 911 sq ft of well-proportioned living space, ideal for a first-time buyer seeking period character and room to grow. The layout includes two reception rooms, a U-shaped kitchen and a private rear garden — practical everyday spaces with scope to modernise and personalise.
Located in Hither Green, the home is a short walk from Hither Green and Ladywell stations with direct links to central London, making it an attractive commuter choice. Local amenities, cafes and parks are close by, and several well-regarded primary and secondary schools sit within easy reach, supporting family life and future resale appeal.
Built c.1900–1929 with solid brick walls, the property retains Victorian features but will benefit from targeted upgrades: insulation, possible heating efficiency improvements and cosmetic refurbishment. Note the property sits in an area with above-average crime and medium flood risk; buyers should factor these into insurance and mitigation costs.
Offered chain-free on a freehold title, this house suits a buyer wanting roomy accommodation with character and clear potential to increase value through sensible improvement works. The affordable council tax band and excellent mobile and broadband connectivity add practical daily advantages.
3 bedroom terraced house for sale in Leahurst Road, Hither Green, SE13 — £625,000 • 3 bed • 1 bath • 920 ft²
3 bedroom terraced house for sale in Leahurst Road, Hither Green, London, SE13 — £875,000 • 3 bed • 1 bath • 1087 ft²
3 bedroom terraced house for sale in Leahurst Road, Hither Green, SE13 — £625,000 • 3 bed • 1 bath • 925 ft²
3 bedroom end of terrace house for sale in Leahurst Road, London, SE13 — £710,000 • 3 bed • 2 bath • 1182 ft²
4 bedroom terraced house for sale in Leahurst Road, Hither Green , London, SE13 — £985,000 • 4 bed • 2 bath • 1339 ft²
2 bedroom terraced house for sale in Ennersdale Road, Hither Green, London, SE13 — £675,000 • 2 bed • 1 bath • 1169 ft²






































































































