Ideal commuter home with garage, driveway and sunny rear garden.
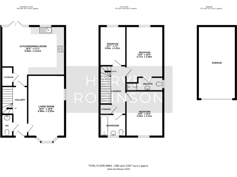
- Three bedrooms, principal with en-suite
- Open-plan modern kitchen/dining with French doors
- Bay-front lounge and downstairs cloakroom
- Detached single garage plus driveway for two cars
- South/east-facing enclosed rear garden, mainly lawn
- Built 2017; boiler serviced 2024; EPC B
- Small plot and modest front garden to maintain
- Estate charge circa £180 p/a; local secondary quality varies
This well-presented three-bedroom semi-detached house, built in 2017, suits families and commuters seeking a low-maintenance modern home. The ground floor offers a bay-front lounge, downstairs cloakroom and a bright open-plan kitchen/dining room that opens onto a south/east-facing rear garden — an easy layout for everyday family life and entertaining. The principal bedroom includes an en-suite, with two further bedrooms and a family bathroom upstairs.
Practical extras include a detached single garage, a wide driveway providing off-street parking for two cars, fast fibre broadband and a gas central heating system with the boiler serviced in 2024. The property benefits from an EPC rating of B and sits within easy reach of Biggleswade town centre and the mainline station, making it appealing for commuters to London.
Notable points to consider: the plot is modest with a small front garden and an average-sized rear lawn, and the development carries an annual estate maintenance charge of circa £180. Local crime levels are average and one nearby secondary school (Edward Peake) is rated as requiring improvement, so buyers prioritising top-rated secondary schools may wish to check catchment options.
Overall, this freehold home presents a comfortable, modern package with good transport links and practical family spaces. Early viewing is recommended for buyers wanting a move-in-ready house in a popular, well-connected part of Biggleswade.
4 bedroom detached house for sale in Dodimead Way, Biggleswade, SG18 — £485,000 • 4 bed • 2 bath • 1207 ft²
3 bedroom semi-detached house for sale in Larkinson Avenue, Biggleswade, Bedfordshire, SG18 — £410,000 • 3 bed • 2 bath • 722 ft²
3 bedroom semi-detached house for sale in Parry Rise, Biggleswade, SG18 — £375,000 • 3 bed • 1 bath • 899 ft²
4 bedroom detached house for sale in Collings Crescent, Biggleswade, SG18 — £535,000 • 4 bed • 2 bath • 1460 ft²
4 bedroom detached house for sale in Collings Crescent, Biggleswade, SG18 — £625,000 • 4 bed • 2 bath • 1620 ft²
4 bedroom semi-detached house for sale in Delius Road, Biggleswade, SG18 — £425,000 • 4 bed • 2 bath • 1208 ft²


















































































