Period character and strong rental potential close to transport links.
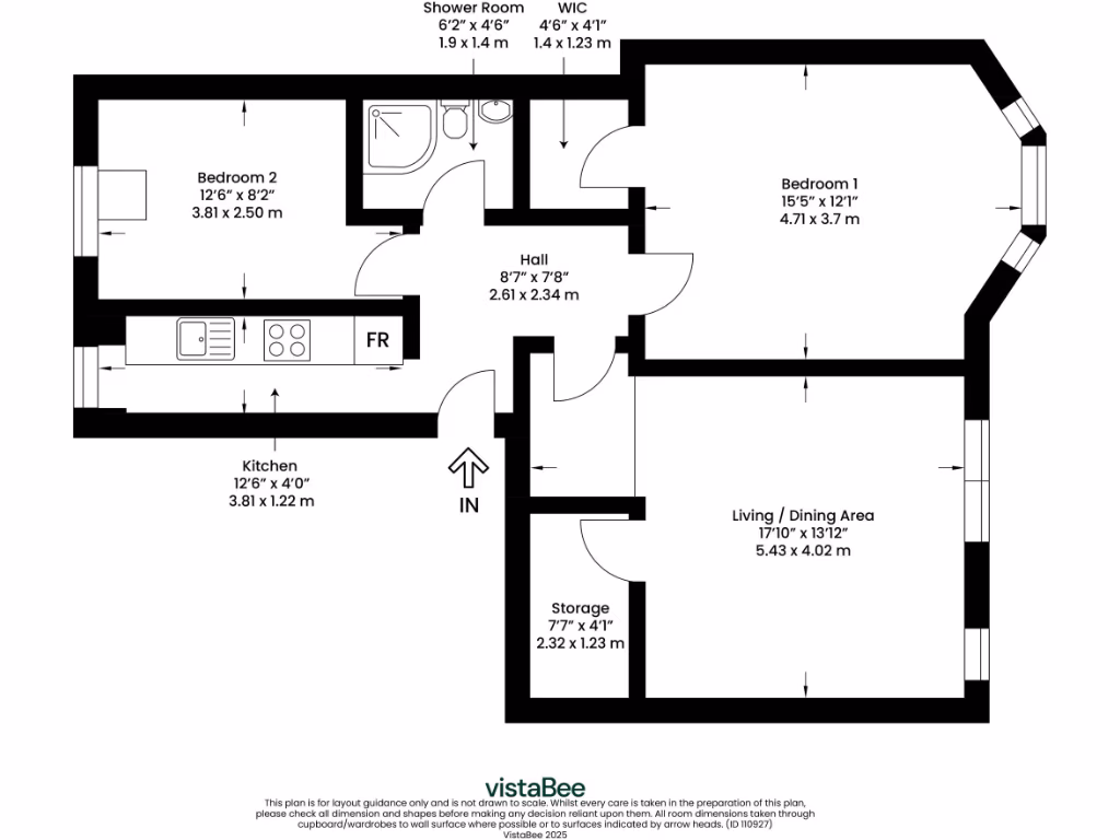
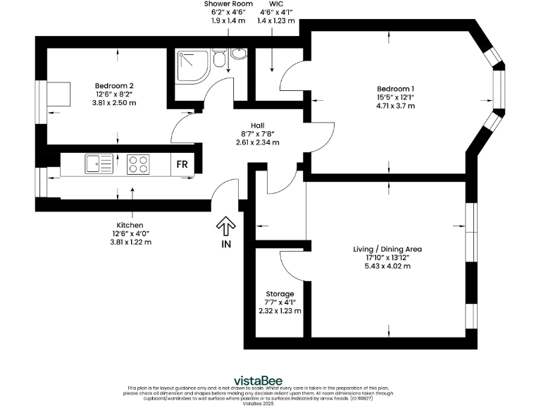
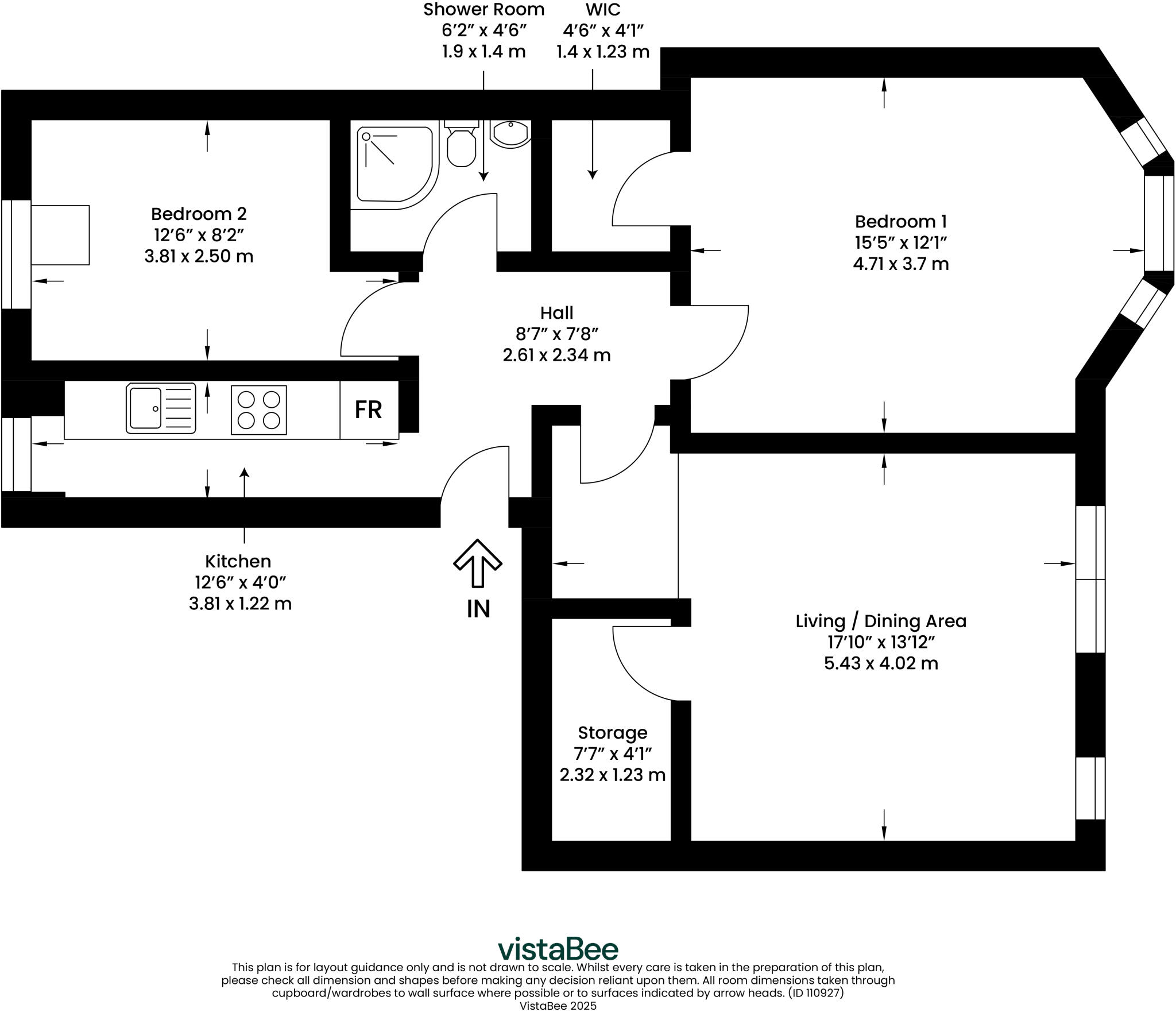
Freehold two-bedroom flat, approx. 718 sq ft
Second-floor Victorian sandstone tenement with high ceilings
Good-sized lounge, galley kitchen, shower room
Fast broadband and excellent mobile signal throughout
Cheap council tax and no flood risk
Located in student-dominated, cosmopolitan neighbourhood
Area classified as very deprived — variable local amenity quality
Closing date for offers: Tuesday 28th Oct at 12 noon
Set on the second floor of a substantial sandstone tenement, this freehold two-bedroom flat offers 718 sq ft of period character with high ceilings and large bay windows that flood the main reception with light. The layout includes a good-sized lounge, galley kitchen and a shower room — a straightforward, lettable footprint for rental or owner-occupation.
Located in a cosmopolitan, student-focused neighbourhood with strong public transport and motorway links, the property benefits from fast broadband and excellent mobile signal — practical positives for modern tenants or sharers. Council tax is described as cheap and there is no flooding risk, which helps running costs and insurability.
The surrounding area is classified as very deprived and heavily populated by students and Eastern European communities; that brings steady rental demand but also means local services and street-level amenity quality vary. Prospective buyers should note the closing date for offers (Tuesday 28th Oct at 12 noon) and arrange an early viewing if interested.
This flat will suit investors looking for a straightforward buy-to-let in a rental-heavy pocket or buyers seeking an entry-level period property with character. It presents immediate rental potential with minimal layout work, though buyers wanting a premium finish should allow budget for cosmetic upgrades to maximise income or resale value.
2 bedroom flat for sale in 2/2, 40 Stewartville Street, Glasgow, G11 — £189,000 • 2 bed • 1 bath • 646 ft²
2 bedroom flat for sale in Dalmarnock Road, Glasgow, Glasgow City, G40 — £120,000 • 2 bed • 1 bath • 803 ft²
2 bedroom flat for sale in 1/2, 160 Millroad Street, Glasgow, Glasgow City, G40 — £80,000 • 2 bed • 1 bath • 614 ft²
2 bedroom apartment for sale in Prince Edward Street, Queens Park, G42 — £175,000 • 2 bed • 1 bath • 758 ft²
2 bedroom flat for sale in Flat 2/1, 5 Ardnahoe Avenue, Toryglen, Glasgow, G42 — £89,995 • 2 bed • 1 bath • 546 ft²
2 bedroom flat for sale in Ruel Street, Glasgow, Glasgow City, G44 — £160,000 • 2 bed • 2 bath • 693 ft²














































































