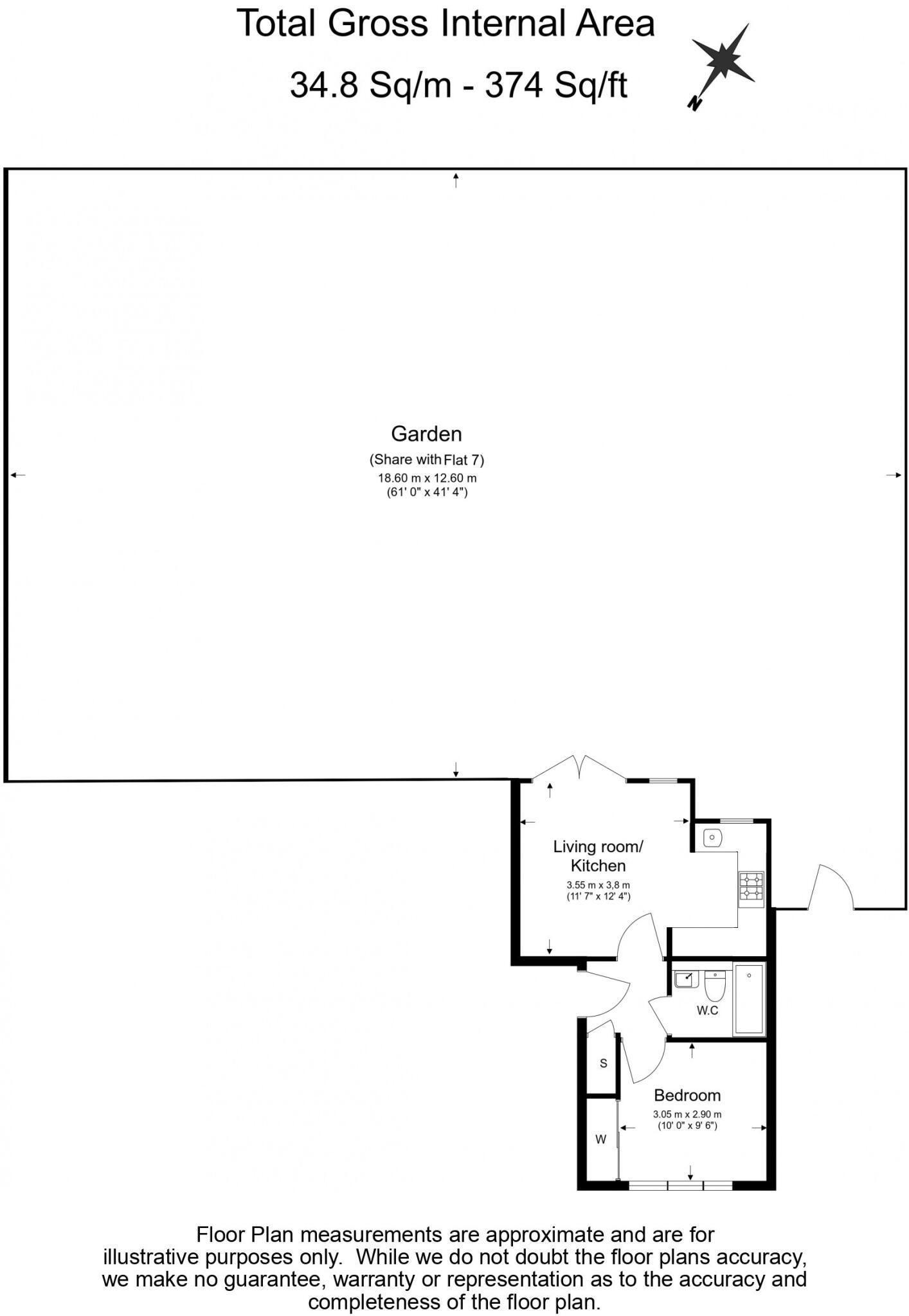
**Standout Features:**
- Chain free modern one-bedroom apartment
- Ground floor with 374 square feet of living space
- Shared south-facing garden
- Custom-designed kitchen with integrated appliances
- Located near excellent schools and transport links
- Low crime rate and good broadband connectivity
**Concise Summary:**
Discover this charming, chain-free one-bedroom apartment, ideally suited for first-time buyers or investors seeking an affordable option in a vibrant community. Spanning approximately 374 square feet, this ground floor unit features a contemporary open-plan kitchen, charming living area with natural light, a cozy double bedroom with built-in wardrobes, and a stylish bathroom. Enjoy the added benefit of a shared south-facing garden, perfect for relaxing in the sun.
Situated next to Charville Academy and within walking distance to Hayes Park Primary and local shopping amenities, your new home offers convenience alongside a sense of community. With excellent transport links including Hillingdon Station on the Metropolitan and Piccadilly lines, you can reach central London with ease. Despite its compact size, this apartment provides security, comfort, and future potential; a fantastic opportunity, especially in the current market. Act fast—properties like this don’t stay available for long!
1 bedroom apartment for sale in Moston Close, Hayes, UB3 — £230,000 • 1 bed • 1 bath • 491 ft²
1 bedroom apartment for sale in Aintree Close, Hillingdon, UB8 — £210,000 • 1 bed • 1 bath • 415 ft²
1 bedroom apartment for sale in Perth Avenue, Hayes, UB4 — £230,000 • 1 bed • 1 bath • 494 ft²
1 bedroom apartment for sale in Uxbridge Road, Hillingdon, UB10 — £235,000 • 1 bed • 1 bath • 561 ft²
1 bedroom apartment for sale in Abbotswood Way, Hayes, UB3 — £235,000 • 1 bed • 1 bath • 431 ft²
1 bedroom apartment for sale in Long Lane, Ickenham, UB10 — £345,000 • 1 bed • 1 bath • 618 ft²


































































