Four bedrooms opposite Heath Extension, close to transport and parks.
Newly refurbished throughout with period features retained
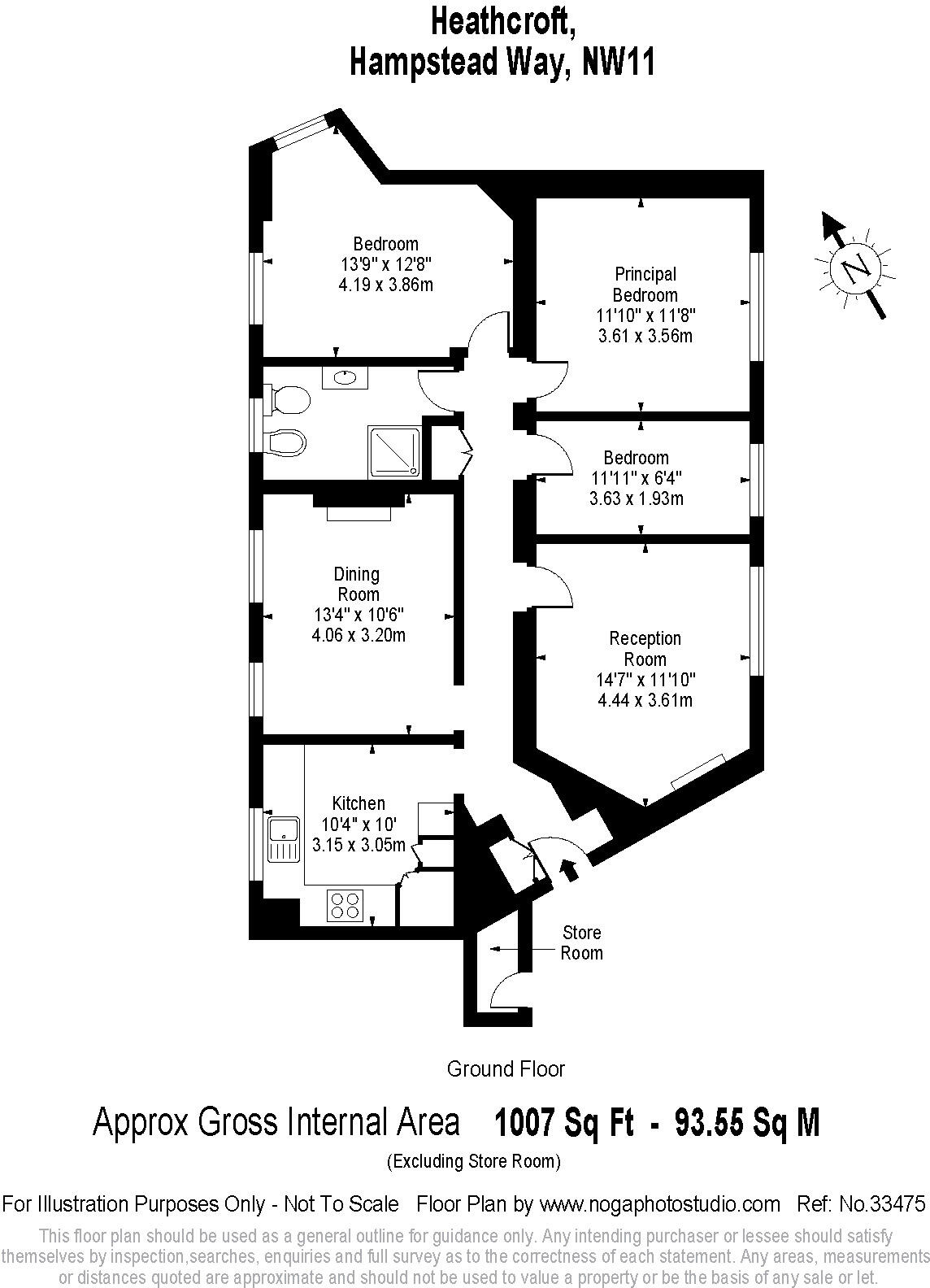
A newly refurbished four-bedroom ground-floor apartment set opposite Hampstead Heath Extension, offering 1,007 sq ft of well-presented accommodation. The flat blends period character — decorative moldings, herringbone floors and a traditional fireplace — with a modern, updated finish throughout.
Practical benefits include an exceptionally long lease (circa 946 years share of freehold), off-street resident parking, landscaped communal gardens and a helpful caretaker. The property sits 0.6 miles from Golders Green tube, close to Golders Hill Park and within easy reach of Hampstead Village amenities and several highly regarded schools.
Buyers should note this is a single-bathroom apartment serving four bedrooms, which may affect family convenience or rental layouts. Service charges are high (around £8,000 p.a.) and council tax is in an expensive band — factor these running costs into affordability calculations. Crime statistics for the immediate area are above average.
This home will suit a family seeking spacious, characterful accommodation in a coveted NW11 location, or a household wanting a low-hassle ground-floor apartment with generous outdoor communal space. The long lease and recent full refurbishment reduce immediate maintenance tasks, while the layout offers potential to adapt living arrangements where required.
3 bedroom flat for sale in Heathcroft Hampstead Way Hampstead Garden Suburb NW11 — £749,000 • 3 bed • 1 bath • 1007 ft²
3 bedroom flat for sale in Hampstead Way, London, NW11 — £700,000 • 3 bed • 1 bath • 826 ft²
4 bedroom flat for sale in Heathcroft, Hampstead Way, NW11 — £650,000 • 4 bed • 1 bath • 1213 ft²
2 bedroom apartment for sale in Hampstead Way, Hampstead Garden Suburb, London, NW11 — £525,000 • 2 bed • 1 bath • 645 ft²
3 bedroom flat for sale in Heathcroft Hampstead Way Hampstead Garden Suburb NW11 — £699,000 • 3 bed • 2 bath
2 bedroom apartment for sale in Heathcroft, Hampstead Way, London, NW11 — £475,000 • 2 bed • 1 bath • 670 ft²










































