Bright second-floor home near Hampstead Heath and transport links.
Three bedrooms and two bathrooms including principal en-suite
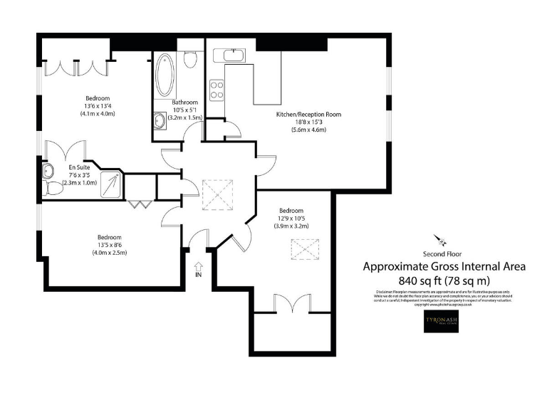
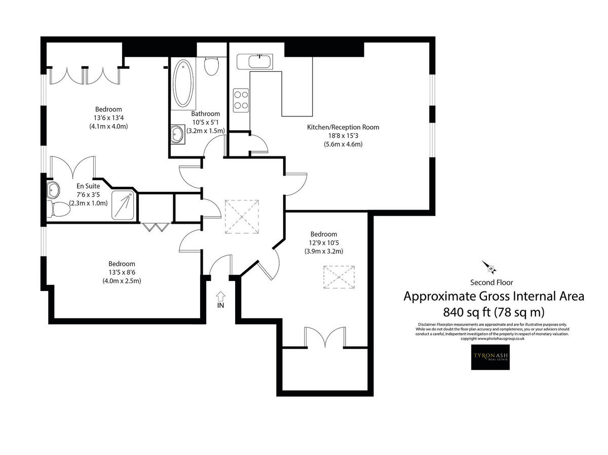
A bright three-bedroom apartment of about 861 sq ft tucked on the second floor of a 1930s purpose-built block in Frognal NW3. The flat offers a double reception, two bathrooms (including an en-suite), and a well-equipped kitchen — a comfortable, practical layout for families or professionals who want space for day-to-day life and occasional entertaining.
The location is a key strength: a short walk to Hampstead Village amenities, excellent Finchley Road transport links, and expansive green space on Hampstead Heath. Local independent schools and a wide range of shops, cafés and leisure options sit within easy reach, supporting both family life and a busy commuter lifestyle.
There are a few practical points to consider. The property is leasehold (110 years remaining) and the building dates from the 1930–49 period; walls are solid brick with no assumed cavity insulation, so heating may be less efficient than modern stock. One bedroom shows signs of wear and would benefit from light refurbishment if a fully modern finish is required.
Overall this apartment suits buyers seeking a well-located, spacious NW3 home with good broadband and mobile connectivity, scope to personalise, and immediate access to top local schools and green spaces.
3 bedroom flat for sale in Frognal, Hampstead, NW3 — £795,000 • 3 bed • 2 bath • 1001 ft²
3 bedroom apartment for sale in Finchley Road, London, NW3 — £500,000 • 3 bed • 1 bath • 830 ft²
3 bedroom flat for sale in Dunrobin Court, Hampstead, , NW3 — £845,000 • 3 bed • 2 bath • 1115 ft²
2 bedroom apartment for sale in Frognal, London, NW3 — £1,400,000 • 2 bed • 2 bath • 1112 ft²
2 bedroom flat for sale in Frognal, Hampstead, NW3 — £695,000 • 2 bed • 2 bath • 704 ft²
3 bedroom flat for sale in Canfield Gardens, South Hampstead, London, NW6 — £675,000 • 3 bed • 2 bath • 1197 ft²










































































