Ready-to-move two-bedroom with private garden and modern finishes.
South-facing bay lounge/dining room with plentiful natural light
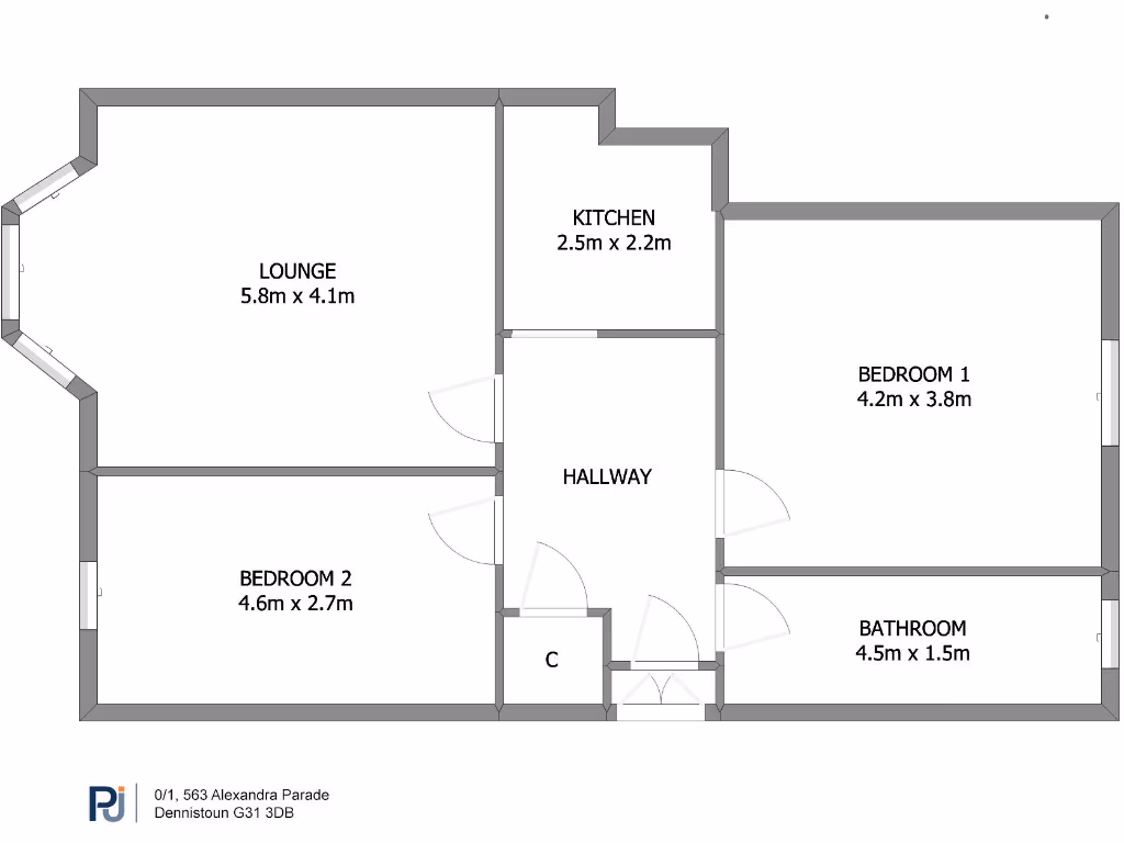
Bright, practical and move-in ready, this two-bedroom ground-floor tenement flat blends Victorian character with modern upgrades. A south-facing bay lounge/dining room floods the main living space with light, while a recently refitted kitchen and luxury bathroom provide contemporary comfort. Double glazing and gas central heating add efficiency, and the property benefits from secure entry and access to a well-kept communal garden.
Outside, a private, enclosed front garden provides a rare bit of outdoor space for city flats. The accommodation totals approximately 692 sq ft — an average-sized layout with two double bedrooms and generous room proportions typical of period homes. The building retains many original features such as high ceilings, cornicing and wood flooring, giving character alongside the modern finishes.
Buyers should note a few important practical points. The wider area is classified as very deprived, which may affect resale considerations and local services; prospective purchasers should factor neighbourhood context into their decision. Tenure is recorded as unknown in the listing paperwork — buyers will need to confirm this early, as it can influence mortgage options and fees. Finally, although newly renovated, purchasers should budget for routine maintenance associated with older tenement buildings.
Overall, this ground-floor property will suit first-time buyers seeking a characterful, turnkey home close to the city centre, or investors looking for a well-presented two-bedroom in a lively, well-connected neighbourhood.
2 bedroom flat for sale in Flat 3/1, 453 Duke Street, Dennistoun, Glasgow, G31 — £170,000 • 2 bed • 1 bath • 640 ft²
2 bedroom flat for sale in Flat 3/4, 110 Roebank Street, Dennistoun , Glasgow, G31 — £199,995 • 2 bed • 1 bath • 718 ft²
2 bedroom flat for sale in Flat 0/2, 399 Alexandra Parade, Dennistoun, Glasgow, G31 — £150,000 • 2 bed • 1 bath • 582 ft²
2 bedroom flat for sale in Flat 1/1, 76 Armadale Street, Dennistoun , Glasgow, G31 — £185,000 • 2 bed • 1 bath • 757 ft²
2 bedroom flat for sale in Flat 3/1, 118 Garthland Drive, Dennistoun , Glasgow, G31 — £175,000 • 2 bed • 1 bath • 605 ft²
2 bedroom flat for sale in Whitehill Street, Dennistoun, G31 2LT, G31 — £189,950 • 2 bed • 1 bath • 702 ft²










































































































