Ready-to-move-in family home near the coast with low running costs.
No onward chain; early completion possible
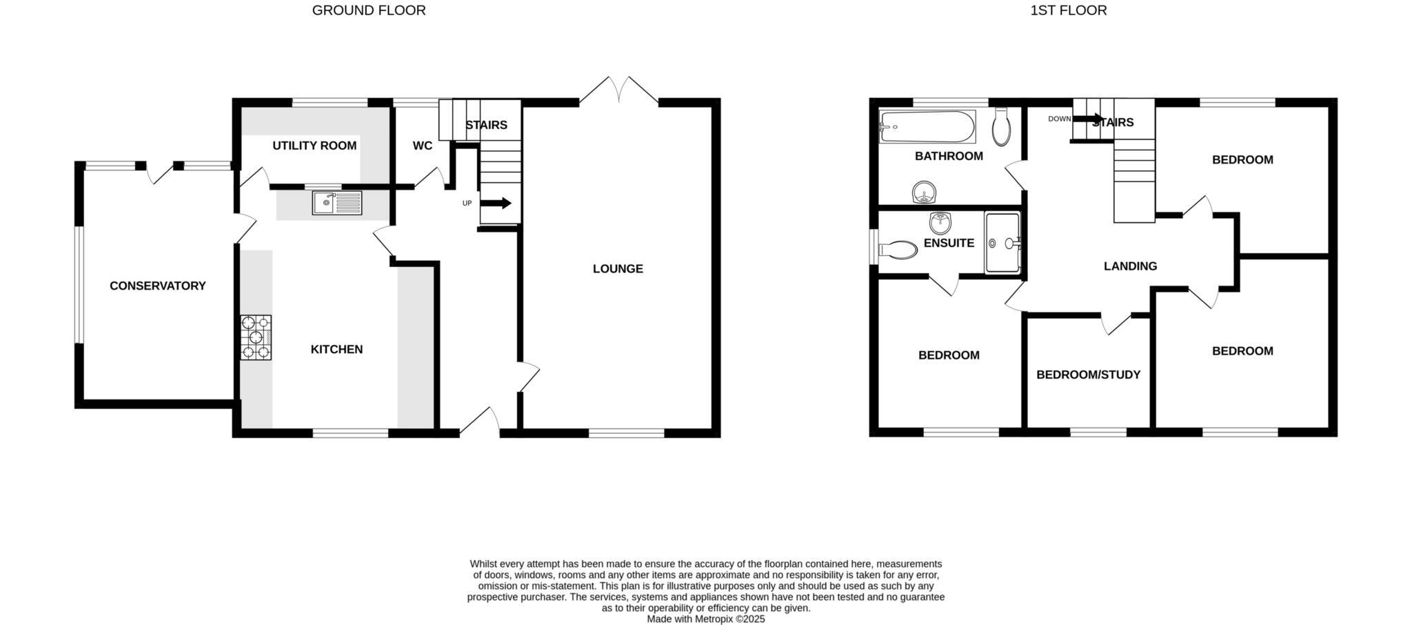
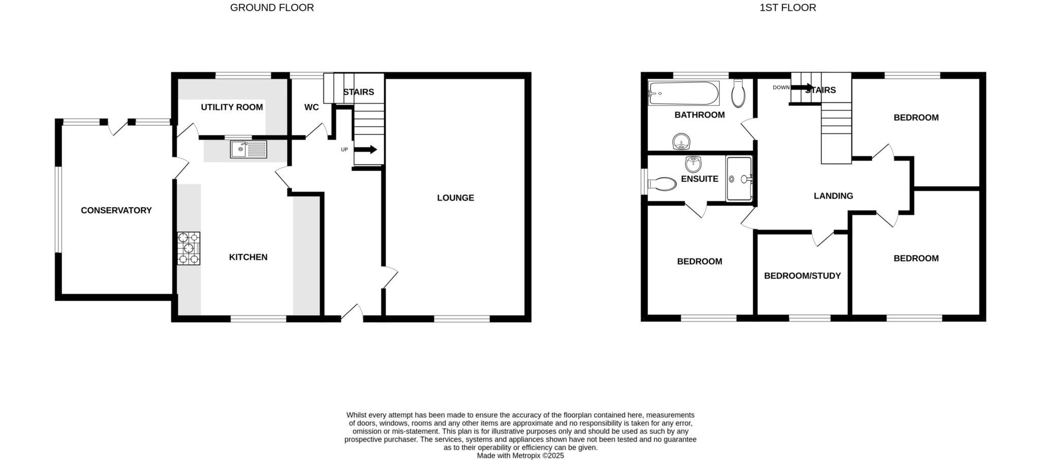
This detached four-bedroom house in Ormesby offers modern, low-maintenance living with no onward chain and early completion possible. The well-presented interior includes a generous lounge, kitchen-diner, conservatory and utility room, ready for immediate occupation. Solar panels contribute to running costs and the property holds an EPC rating of B.
Set on a decent, wrap-around sunny garden that is not overlooked, the plot includes driveway parking for two cars and an electric-lit single garage. The village-centre location places local shops, pubs and amenities close by, with the coast just a five-minute drive — appealing for families seeking seaside access without being in a tourist hotspot.
Accommodation is practical for family life: three double bedrooms plus a smaller fourth room suitable as a study or nursery, family bathroom and an ensuite to the main bedroom. The oil-fired boiler was fitted in 2016 with a new burner in November 2023 and is serviced (noted as serviced October 2025), but main heating relies on oil and an external oil tank remains in the garden.
Buyers should note some legacy features: double glazing was installed before 2002 and main heating is oil rather than gas. Council tax is moderate and mobile signal is average. Overall this is a comfortable, modern family home in a quiet village setting with scope to personalise and enjoy seaside proximity.
4 bedroom detached house for sale in Sharpe Way, Ormesby, NR29 — £350,000 • 4 bed • 2 bath • 1337 ft²
4 bedroom detached house for sale in North Road, Ormesby, NR29 — £495,000 • 4 bed • 2 bath • 2281 ft²
4 bedroom detached house for sale in North Road, Ormesby, NR29 — £485,000 • 4 bed • 2 bath • 3488 ft²
4 bedroom detached house for sale in North Road, Ormesby, NR29 — £525,000 • 4 bed • 2 bath • 2082 ft²
4 bedroom detached house for sale in Conifer Close, Ormesby, NR29 — £325,000 • 4 bed • 1 bath • 1314 ft²
3 bedroom detached house for sale in Conifer Close, Ormesby, NR29 — £325,000 • 3 bed • 1 bath • 1195 ft²














































































