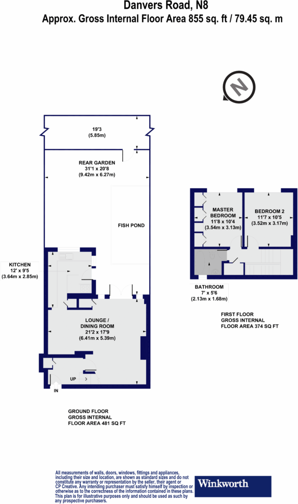
Auction lot: newly renovated 2-bed maisonette with garden and immediate rental income..
- Currently let at £2,400 pcm producing approx. 5% yield
- Newly renovated and offered in walk-in condition
- Private garden accessed from living area
- 855 sq ft, two double bedrooms, one bathroom
- Leasehold: 102 years remaining
- Ground rent £444 pa; service charge approx. £1,200 pa
- Solid brick construction; assumed walls have no insulation
- Will be sold at timed online auction (sale conditions apply)
This two-bedroom maisonette in N8 is offered at timed auction with immediate rental income. It is currently let at £2,400 pcm (£28,800 pa), which equates to an estimated 5% yield at the guide price — an outcome likely to attract buy-to-let investors seeking immediate cashflow and potential capital growth in a strong North London postcode.
Set over two floors and extending to around 855 sq ft, the flat has been newly renovated and benefits from a private garden, double glazing and gas central heating. The layout includes a first-floor living room and kitchen, with two double bedrooms and a bathroom on the upper floor. The property is in walk-in condition but still offers scope for light cosmetic personalisation to increase rental value or resale appeal.
Buyers should note material leasehold details and ongoing costs: 102 years remain on the lease, annual ground rent of £444 and a service charge of around £1,200. Construction is solid brick (typical of its 1900–1929 build) with assumed lack of wall insulation — upgrading insulation could improve energy efficiency but would be an additional cost. There is one bathroom and the property will be sold at auction, which requires readiness to proceed and awareness of auction terms.
Overall this maisonette will suit investors looking for a let-ready asset with garden and proven income, or purchasers seeking a well-located family home in a desirable North London neighbourhood. The auction setting and leasehold charges are important considerations for budget planning and purchase timing.
2 bedroom flat for sale in 109 Ossulton Way, Hampstead Garden Suburb, London, N2 — £325,000 • 2 bed • 1 bath • 581 ft²
2 bedroom flat for sale in High Road, North Finchley, London, N12 — £350,000 • 2 bed • 1 bath • 618 ft²
2 bedroom flat for sale in 56 Prospect Ring, East Finchley, London, N2 8BP, N2 — £145,000 • 2 bed • 1 bath • 701 ft²
3 bedroom maisonette for sale in 54A Marlborough Road, London, N22 8NN, N22 — £320,000 • 3 bed • 1 bath
2 bedroom flat for sale in Colney Hatch, Muswell Hill, London, N10 — £365,000 • 2 bed • 2 bath • 846 ft²
2 bedroom maisonette for sale in Winchmore Villas, Winchmore Hill Road, London, N21 — £385,000 • 2 bed • 1 bath • 744 ft²














































