Three-bedroom Rossmore house with garage, driveway and easy links to schools and motorways.
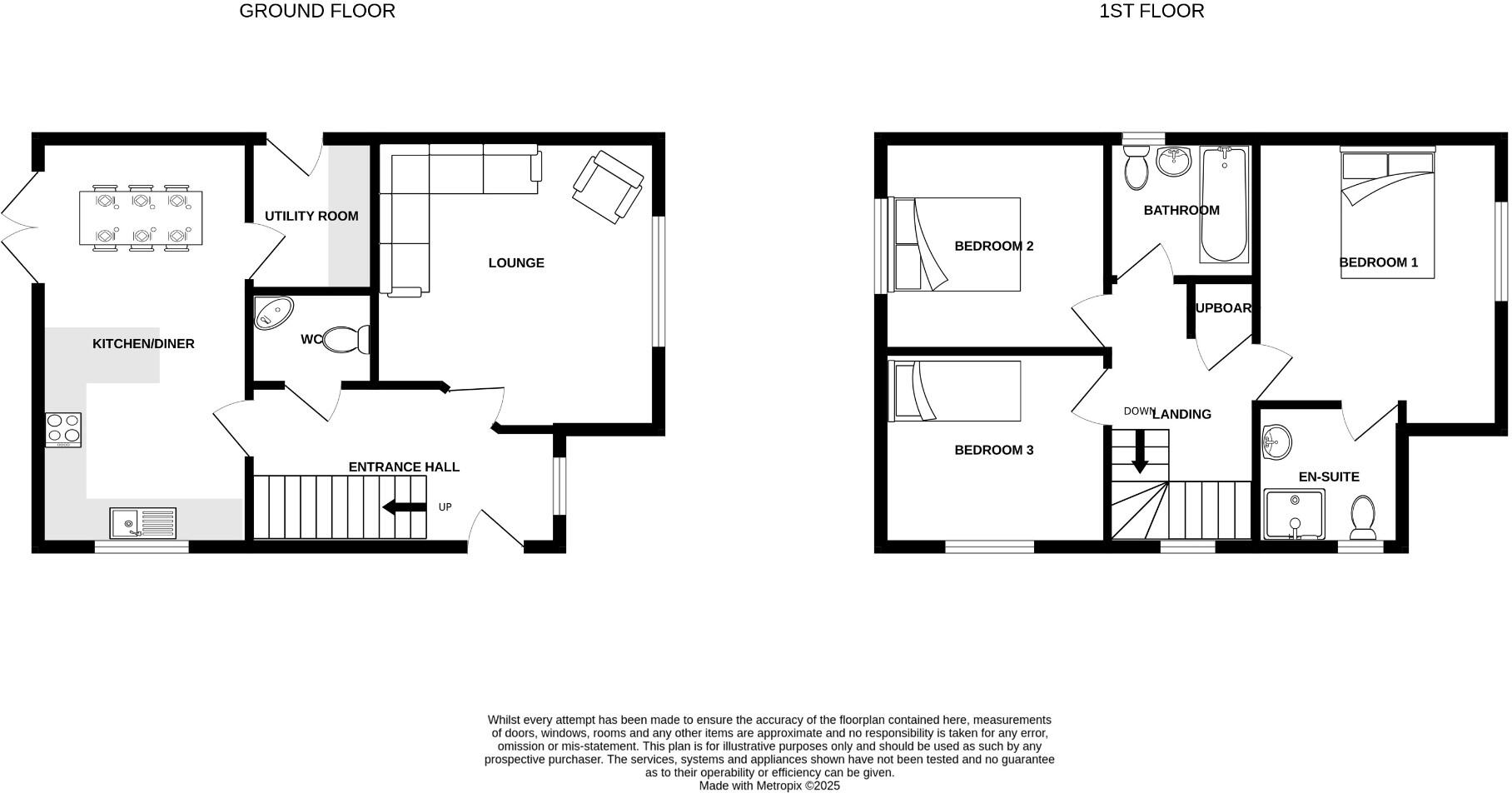
Three bedrooms with principal en-suite
Open-plan kitchen/diner with integrated appliances
Detached garage plus driveway parking
Utility room and downstairs cloakroom
UPVC double glazing and gas central heating
Small corner plot and compact rear garden
Wider area shows high deprivation; consider resale/rental outlook
Services (gas/electric/heat) not tested — buyers to verify
Set on a corner plot in Rossmore, this three-bedroom detached property offers practical, modern living across 946 sq ft. Ground floor features include an open-plan kitchen/diner, separate lounge, utility room and a downstairs cloakroom — useful for busy family life. The principal bedroom benefits from an en-suite, and a detached garage plus driveway provide secure parking and storage.
The house is gas centrally heated and UPVC double glazed, with a contemporary bathroom and well-presented kitchen. Broadband speeds are fast and mobile signal is excellent, supporting home working or streaming. Nearby schools all hold Good Ofsted ratings and local amenities and motorway links are within easy reach, making daily life straightforward.
Buyers should note the small plot size and modest overall room dimensions; the garden is pleasant but compact. The wider area records high levels of deprivation and the local classification indicates constrained renters — factors to consider for long-term resale or rental prospects. Services and heating have not been tested and purchasers are advised to verify all systems before committing.
Overall this freehold property suits purchasers seeking a ready-to-live-in three-bedroom house with parking and sensible family-friendly layout, while those seeking large gardens or a prime neighbourhood should weigh the location and plot constraints.
3 bedroom detached house for sale in Rockling Street, Rossmore, Ellesmere Port, CH66 — £270,000 • 3 bed • 3 bath • 966 ft²
3 bedroom town house for sale in Bitterling Street, Rossmore , CH66 — £195,000 • 3 bed • 1 bath • 851 ft²
3 bedroom detached house for sale in High Pond Lane, Ellesmere Port, Cheshire, CH66 — £275,000 • 3 bed • 2 bath • 1015 ft²
4 bedroom detached house for sale in Clover Birches, Ellesmere Port, Cheshire, CH65 — £285,000 • 4 bed • 3 bath • 1322 ft²
3 bedroom detached house for sale in New Lincoln Road, Ellesmere Port, CH65 — £280,000 • 3 bed • 2 bath • 1033 ft²
2 bedroom terraced house for sale in Bitterling Street, Ellesmere Port, Cheshire, CH66 — £185,000 • 2 bed • 1 bath • 615 ft²






























































































