Spacious family living with sweeping valley views and extensive private grounds.
- Large Georgian detached house with character stone facade
- Dramatic double-height dining room and exposed beams throughout
- Principal bedroom with balcony, en-suite and dressing room
- Generous dining kitchen with high-quality units and island
- Very large mature gardens, long driveway and multiple parking areas
- Scope to create an additional first-floor bedroom (subject to consent)
- Very slow broadband and average mobile signal — not ideal for heavy remote work
- Located in a hamlet with higher recorded local crime statistics
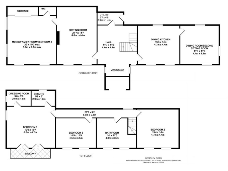
Set on a very large private plot, this substantial Georgian detached home offers dramatic double-height living spaces and sweeping rural views. The layout suits a family seeking generous reception rooms, a large dining kitchen, and a principal bedroom with balcony and dressing room.
Practical benefits include multiple reception areas that can adapt to living, working or guest use, off-street parking for several cars, formal gardens and three additional land plots available by separate negotiation. There is clear scope to create an extra first-floor bedroom by reducing ceiling height above the dining room, subject to consent.
Buyers should note material downsides: the property sits in a hamlet/isolated setting with average mobile signal and very slow broadband, and the immediate wider area records higher crime levels. The lane’s initial stretch is commercial in character before opening into the quiet rural approach. These factors affect suitability for remote working and some buyers’ lifestyle expectations.
5 bedroom detached house for sale in Long Lane, Honley, Holmfirth, HD9 — £600,000 • 5 bed • 2 bath • 1247 ft²
5 bedroom detached house for sale in Holly Cottage, Jackson Bridge, Holmfirth HD9 — £1,100,000 • 5 bed • 3 bath • 3222 ft²
4 bedroom detached house for sale in Park Lane, Upper Cumberworth, HD8 — £725,000 • 4 bed • 2 bath • 2164 ft²
4 bedroom character property for sale in The Old Brick Works, Top O' Th' Bank, Thurstonland, HD4 — £625,000 • 4 bed • 2 bath • 1819 ft²
4 bedroom detached house for sale in Crosland Edge, Meltham, HD9 — £1,100,000 • 4 bed • 3 bath • 3193 ft²
4 bedroom detached house for sale in Miry Lane, Netherthong HD9 — £900,000 • 4 bed • 2 bath • 2821 ft²


































































































































