Detached home with private garden, annex income and workshop near schools.
Detached, recently renovated cottage with flexible two‑storey layout
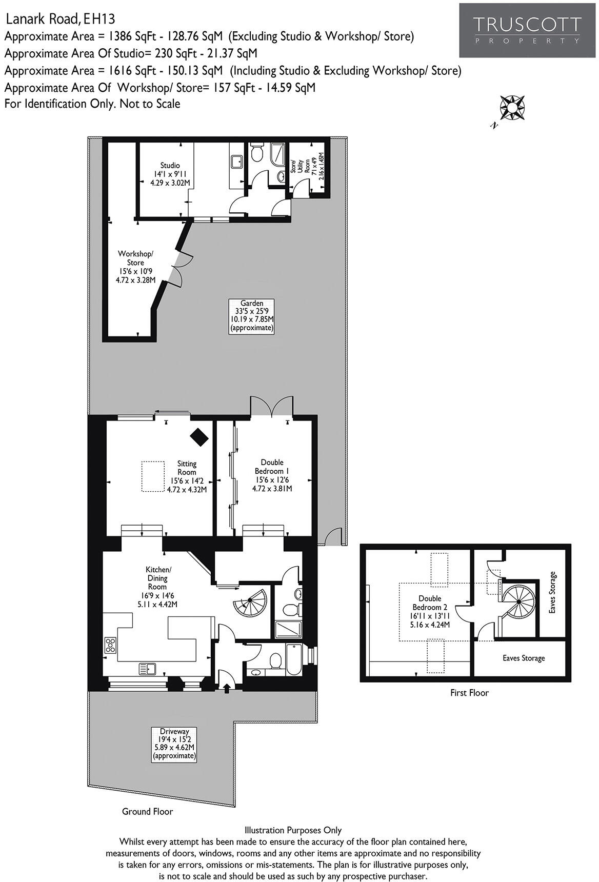
This recently renovated detached cottage on Lanark Road offers flexible, comfortable living across two floors, finished to a high standard. The bright kitchen/dining room with exposed beams and a spiral staircase forms a sociable hub that flows through to a sitting room with a wood-burning stove and wide sliding doors to the garden. The principal bedroom has an en suite and French doors to the rear, while a second generous double on the upper floor includes eaves storage and a study area.
A major practical benefit is the self-contained annex to the rear, currently a successful holiday let that generated c.£13,000 in 2024 (60% occupancy). The annex provides useful income or independent living space for guests or extended family. Additional outbuildings include a large workshop/store and a utility/store room, giving generous storage and potential for hobby use or small-scale development subject to planning.
The landscaped garden is private and low-maintenance, with an entertaining terrace, artificial lawn, raised beds and a wood-fired hot tub at its centre. Practical fixtures include gas central heating and double glazing throughout, plus excellent mobile signal and fast broadband, making the house ready for modern family life and flexible working.
Important practical points: the property is Freehold and has been newly renovated, but Council Tax is Band E (above average). The wider dataset flags the area as 'deprived' despite Colinton’s local reputation for good schools and attractive green spaces; buyers should check local data and services that matter to them. Flood risk is recorded as none.
4 bedroom cottage for sale in Lasswade, EH18 — £365,000 • 4 bed • 2 bath • 1553 ft²
3 bedroom cottage for sale in 8 Lochend Road, Edinburgh, EH28 8SY, EH28 — £265,000 • 3 bed • 2 bath • 983 ft²
7 bedroom detached house for sale in Colinton Cottage, Pentland Avenue, Colinton, Edinburgh, EH13 — £1,400,000 • 7 bed • 4 bath • 4686 ft²
4 bedroom cottage for sale in 2 Currievale Cottages, Currie, Edinburgh, EH14 4AA, EH14 — £425,000 • 4 bed • 2 bath • 1229 ft²
4 bedroom cottage for sale in 1 Cowdenburn Cottages, West Linton, EH46 7BD, EH46 — £470,000 • 4 bed • 2 bath • 1528 ft²
3 bedroom cottage for sale in Biggar Road, Edinburgh, EH10 — £390,000 • 3 bed • 1 bath • 1119 ft²






















































































































