Within easy walking distance to schools, college and town centre.
Three double bedrooms on upper floor, suitable for family sleeping arrangements
Bright lounge with large window and recent internal updates
Modern fitted kitchen plus separate utility room
Large rear garden and mature front garden, good outdoor space
Multi-car driveway fits 3+ vehicles; garage/parking available
Single bathroom only — may need expansion for large families
Located in a very deprived area; consider local market factors
Freehold tenure, gas central heating, double glazing throughout
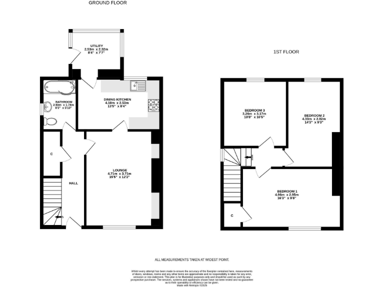
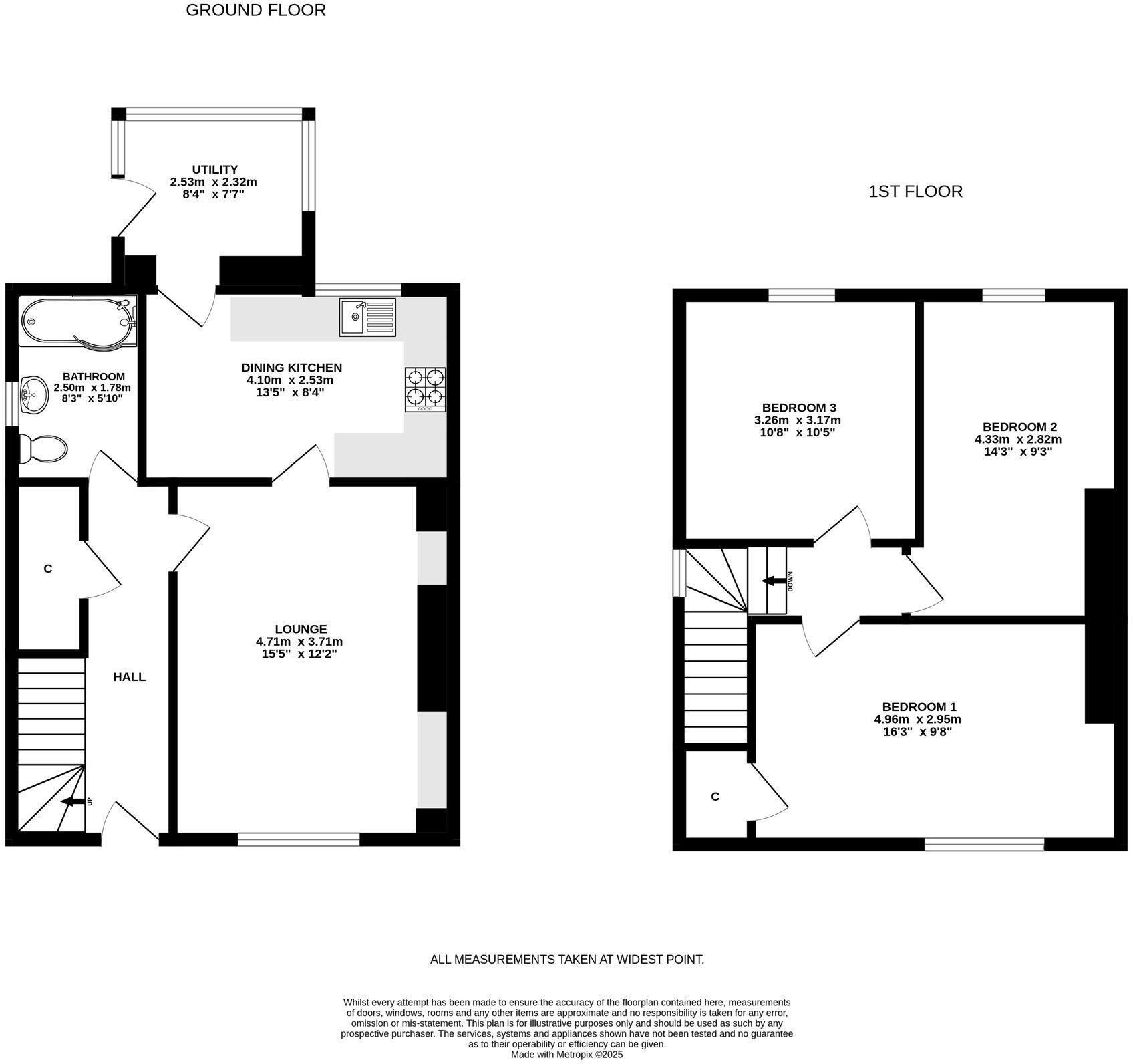
Set on a generous plot in Kilwinning, this three-bedroom semi-detached villa offers practical family living with strong parking and outdoor space. The house benefits from a modern fitted kitchen, utility room, gas central heating and double glazing, making it comfortable from day one. At 815 sq ft the layout is traditionally arranged with a bright lounge and three double bedrooms on the upper floor.
Outdoor space is a standout: a large rear garden and mature front garden provide privacy and scope for children’s play or gardening projects. A wide multi-car driveway fits three or more vehicles and leads to garage/parking provision — useful for families with multiple cars or tradespeople needing storage.
The location is convenient: within walking distance of Kilwinning town centre, primary and secondary schools and Ayrshire College’s Kilwinning campus. Broadband is fast and mobile signal is excellent. Important practical points: the property sits in a very deprived area, has a single family bathroom, and is an average-sized home, so buyers should weigh long-term value against local market conditions.
3 bedroom semi-detached house for sale in 9 Ashgrove Road, Kilwinning, KA13 6NX, KA13 — £125,000 • 3 bed • 1 bath • 1398 ft²
3 bedroom semi-detached house for sale in 40 Boyd Orr Crescent, Kilmaurs, KA3 2QB, KA3 — £140,000 • 3 bed • 1 bath • 646 ft²
3 bedroom semi-detached house for sale in Mosshead Road, KILMARNOCK, KA1 — £105,000 • 3 bed • 1 bath • 665 ft²
2 bedroom semi-detached house for sale in 75 Redstone Avenue, Kilwinning, KA13 7JF, KA13 — £93,000 • 2 bed • 1 bath
3 bedroom end of terrace house for sale in 91 Foundry Wynd, Kilwinning, KA13 6UG, KA13 — £140,000 • 3 bed • 1 bath • 775 ft²
3 bedroom semi-detached house for sale in 6 Rosebery Court, Kilbirnie, KA25 7AH, KA25 — £160,000 • 3 bed • 1 bath • 1098 ft²


















































































