Renovation opportunity with large garden and extension potential near good schools and transport links..
Three bedrooms in traditional semi-detached layout
Needs full renovation throughout; priced for works
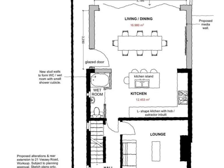
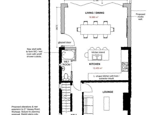
Draft single-storey extension plans available; LPA consent required
Large rear garden with patio and two wooden sheds
Off-street driveway parking for one vehicle
EPC rating C; mains gas boiler and radiators present
Approx 372 sq ft; small overall internal footprint
Council Tax Band A — very cheap ongoing cost
A three-bedroom semi-detached home offering clear renovation potential in a well-connected Worksop location. The property is freehold, has an EPC rating of C and sits on a decent plot with a large rear garden — a rare find for buyers looking to extend living space or create a family garden. Internal space is compact (approximately 372 sq ft) but arranged traditionally with a spacious living room and kitchen-diner leading to the garden.
This house is best suited to a first-time buyer or investor comfortable with a scheme of works. It currently requires a full refurbishment to modernise finishes and services; draft plans exist for a single-storey rear extension and ground-floor wet room, but any buyer would need to obtain LPA consents. Practical positives include mains gas central heating, double glazing installed post-2002, driveway parking for one vehicle and low local crime.
Set close to good local schools, shops and strong road links (A1/M1 access), the location supports family life and rental demand. The property’s modest footprint and clear need for upgrading mean budget-conscious buyers can add value through renovation or a sympathetic extension, while those seeking a move-in-ready home should expect significant work and costs.
3 bedroom semi-detached house for sale in Mansfield Road, Worksop, S80 — £200,000 • 3 bed • 1 bath • 884 ft²
3 bedroom semi-detached house for sale in Netherton Road, Worksop, S80 — £150,000 • 3 bed • 1 bath • 937 ft²
3 bedroom semi-detached house for sale in Sime Street, Worksop, S80 — £70,000 • 3 bed • 1 bath • 614 ft²
3 bedroom detached house for sale in Holding, Worksop, S81 — £150,000 • 3 bed • 1 bath • 661 ft²
3 bedroom semi-detached house for sale in Beckett Avenue, Carlton-In-Lindrick, Worksop, S81 — £160,000 • 3 bed • 1 bath • 893 ft²
3 bedroom semi-detached house for sale in Shepherds Avenue, Worksop, S81 — £195,000 • 3 bed • 1 bath • 1055 ft²






































































































