Contemporary central home ideal for families or professionals wanting town living.
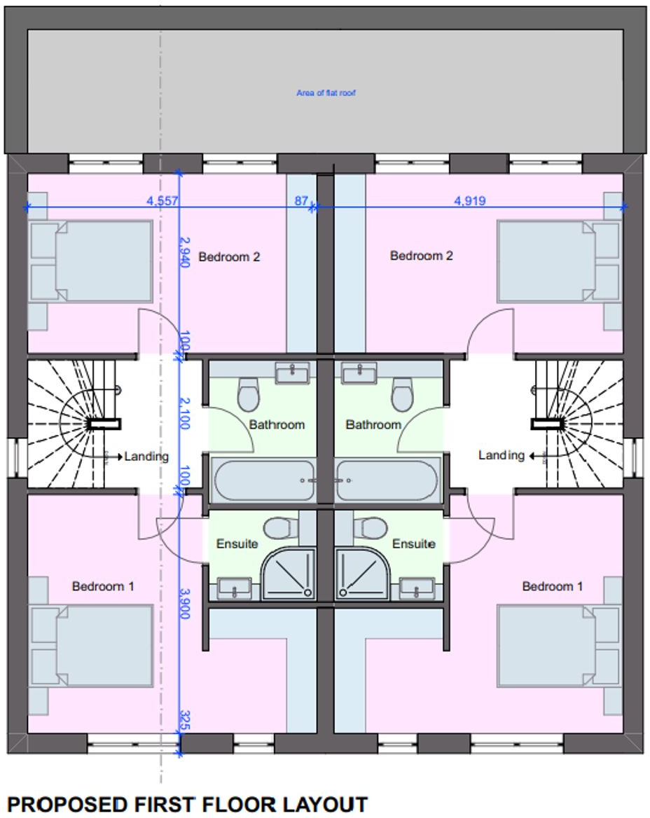
Four bedrooms across three storeys, modern new-build layout
Set over three storeys, this newly built four-bedroom semi-detached townhouse offers contemporary living in the heart of Ormskirk. At about 710 sq ft, the layout suits families or professionals who prioritise location and modern finishes over expansive floorplan. The property is freehold and includes three bathrooms across approximately twelve rooms, arranged for flexible day-to-day living.
The development sits within a wider regeneration scheme that converts the former Windmill Inn and bowling green into new homes. That brings freshly built neighbours and investment into the area, but also short-term construction activity and a change to the immediate streetscape to consider. Broadband is average; mobile signal is excellent. There is no flood risk recorded for the site.
Practical considerations are candidly set out: the overall internal size is small for four bedrooms, and local crime levels are above average. Nearby school options include Ofsted-rated Good primary schools, but the closest state secondary has an Inadequate rating. For buyers seeking a central, characterful town address with modern fittings and strong transport/amenity links, this house offers good long-term potential. For downsizers or large families who need generous living space, the compact square footage may feel constrained.
4 bedroom semi-detached house for sale in Mill Street, Ormskirk, L39 — £495,000 • 4 bed • 3 bath • 2369 ft²
4 bedroom detached house for sale in Windmill Mews, Mill Street, Ormskirk, L39 2AU, L39 — £515,000 • 4 bed • 3 bath • 814 ft²
4 bedroom detached house for sale in Merchant Road, Ormskirk, L39 4AD, L39 — £345,000 • 4 bed • 3 bath • 1331 ft²
3 bedroom semi-detached house for sale in Taylor Avenue, Ormskirk, L39 2ED, L39 — £235,000 • 3 bed • 2 bath • 839 ft²
4 bedroom semi-detached house for sale in Ludlow Drive, Ormskirk, Lancashire, L39 — £250,000 • 4 bed • 2 bath • 1389 ft²
4 bedroom detached house for sale in Stone Mason Crescent, Ormskirk L39 2BN, L39 — £395,000 • 4 bed • 3 bath • 989 ft²


































