**Standout Features:**
- Bright and spacious one-bedroom apartment on the second floor.
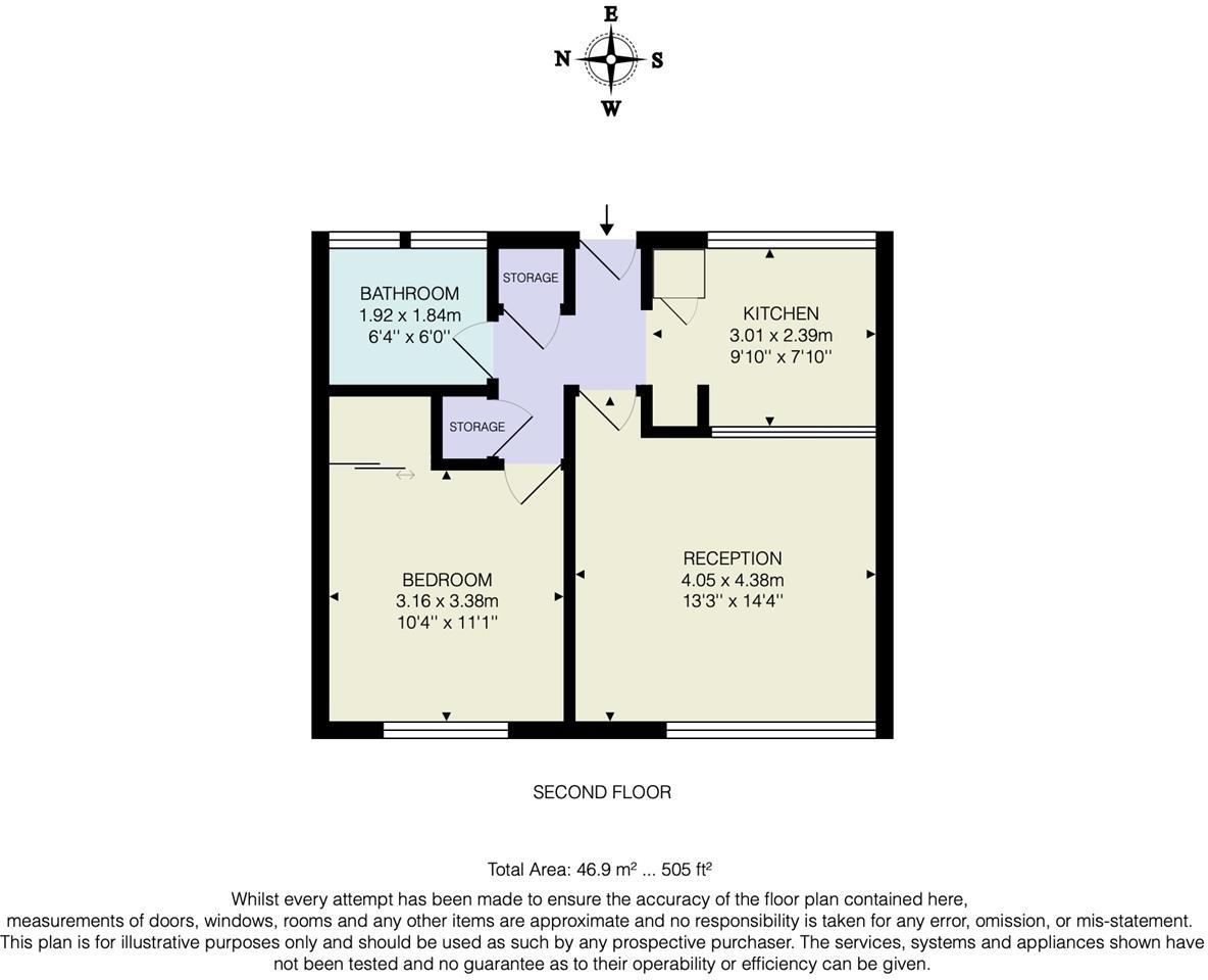
- Open-plan kitchen/diner and reception area, perfect for modern living.
- Private entrance for added security and convenience.
- Close proximity to South Woodford Station and local amenities.
- Off-street resident parking with modest service charges.
- 100-year lease remaining.
This contemporary one-bedroom apartment offers a perfect blend of comfort and convenience, making it an excellent choice for first-time buyers or those seeking a stylish London retreat. Flooded with natural light, the open-plan kitchen and dining area create an inviting atmosphere, while the spacious reception room provides ample space for both relaxation and entertaining. A private entrance enhances the feeling of exclusivity, while the nearby shops, cafés, and the vibrant George Lane ensure that all daily needs are within easy reach.
Positioned just a short 10-minute walk from South Woodford Station, the property boasts excellent transport links to the City and West End, making commuting a breeze. Peaceful living awaits with Epping Forest just moments away, offering serene walks and a lush escape from urban life. With a long lease, off-street parking, and below-average service charges, this apartment combines modern living with practical considerations.
However, prospective buyers should note that the property features double glazing pre-2002 and may require future updates for optimal insulation. Overall, this apartment is a fantastic opportunity, poised to cater to lifestyle needs in a thriving London neighborhood—don't miss your chance to make it your new home!
1 bedroom flat for sale in Maybank Road, South Woodford, E18 — £315,000 • 1 bed • 1 bath • 484 ft²
1 bedroom apartment for sale in Woodville Road, South Woodford, E18 — £325,000 • 1 bed • 1 bath • 461 ft²
3 bedroom apartment for sale in Eastwood Close, South Woodford, E18 — £400,000 • 3 bed • 1 bath • 945 ft²
1 bedroom flat for sale in Chigwell Road, South Woodford, E18 — £230,000 • 1 bed • 2 bath • 517 ft²
2 bedroom apartment for sale in High Road, South Woodford, E18 — £375,000 • 2 bed • 2 bath • 703 ft²
2 bedroom apartment for sale in Eastwood Close, South Woodford, E18 — £400,000 • 2 bed • 1 bath • 767 ft²






























































