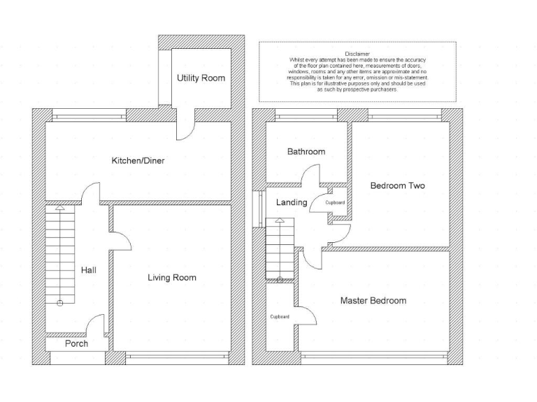
**Standout Features:**
- Two-bedroom semi-detached house
- Well-presented with modern interior
- Spacious kitchen/diner and utility room
- South-facing rear garden, perfect for outdoor living
- Gas central heating and double glazing for comfort
- Freehold tenure, providing security and flexibility
**Potential Downsides:**
- Average-sized rooms may not meet needs for larger families
- Constructed in the mid-20th century, buyer should evaluate property condition
- Limited plot size may restrict outdoor enhancements
Situated in the desirable Newton Hall area of Durham, this charming two-bedroom semi-detached house is a fantastic opportunity for a range of buyers, from first-time homeowners to investors seeking rental potential. The property features a contemporary layout with a welcoming entrance, a cozy living room, and an expansive kitchen/diner that can easily accommodate family meals or entertaining friends. The south-facing garden not only enhances your outdoor space but also invites light into your living areas, creating a warm and inviting atmosphere.
With an EPC rating of D, gas central heating, and double glazing, the home promises comfort and efficiency. Proximity to highly rated local schools and amenities makes it appealing for families, while its low-crime neighborhood ensures security for all. Although the plot size is small and may require slight renovations, the overall condition is well-maintained, allowing for easy move-in. This property won't last long on the market—schedule your viewing today and envision the comforts of your new home!
2 bedroom terraced house for sale in Bek Road, Newton Hall, Durham, DH1 — £120,000 • 2 bed • 1 bath • 768 ft²
3 bedroom terraced house for sale in Farnham Road, Durham, Durham, DH1 5LN, DH1 — £140,000 • 3 bed • 1 bath • 1138 ft²
2 bedroom semi-detached house for sale in Waterson Crescent, Witton Gilbert, Durham, DH7 — £125,000 • 2 bed • 1 bath • 593 ft²
3 bedroom semi-detached house for sale in Salisbury Road, Newton Hall, Durham, DH1 — £220,000 • 3 bed • 1 bath • 1141 ft²
3 bedroom semi-detached house for sale in Lindisfarne Road, Newton Hall, Durham, DH1 — £240,000 • 3 bed • 1 bath • 1012 ft²
3 bedroom semi-detached house for sale in Rothbury Road, Newton Hall, Durham, DH1 — £210,000 • 3 bed • 1 bath • 513 ft²














































