Extensive freehold unit with loading bay and flexible layout for investors.
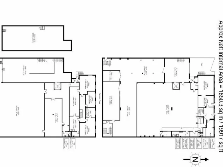
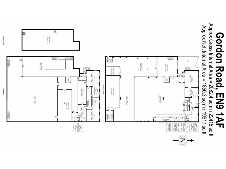
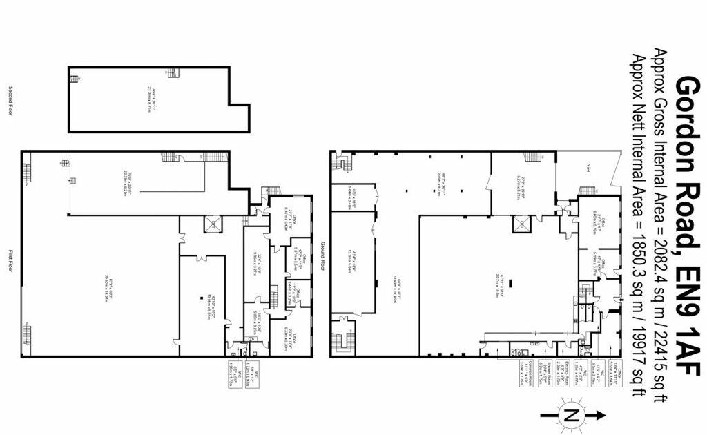
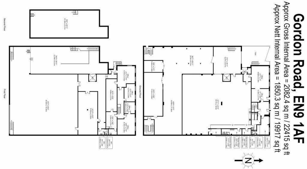
- Approx 22,415 sq ft two-storey light industrial building
- Loading bay plus access via the main offices
- Rear parking for approximately nine cars
- Currently subdivided; can be opened to create large open-plan space
- Freehold; vacant possession on completion
- Rateable value £88,500 — check local authority for rates payable
- Slow fixed broadband; excellent mobile signal and low crime
- Located in a very deprived area; refurbishment may be needed
A substantial two-storey light industrial building in the established Lea Road industrial area, offered freehold with vacant possession on completion. The property extends to approximately 22,415 sq ft and includes a dedicated loading bay, rear parking for around nine cars and large upper-level windows that provide natural light to the office accommodation.
The layout is currently subdivided for multiple tenants but much of the partitioning can be removed to create open-plan workshop or warehouse space, or re-subdivided to maximise rental income. Strong road links to the M25 (J25/26 nearby), M11 and A1(M) make this a practical distribution or wholesaling base for occupiers across Hertfordshire and Greater London.
Investors should note the current rateable value is £88,500 (check local authority for estimated rates payable) and the EPC is rated D, valid until 2032. Practical negatives include generally slow fixed broadband speeds on site and the surrounding locality being classified as very deprived; however, crime levels are reported as low and mobile signal is excellent.
This property suits buyers seeking a large, flexible industrial asset with immediate vacant possession and redevelopment or lettable-subdivision potential. Significant floor area, parking and a loading bay are clear value drivers, while refurbishment or tenancy reconfiguration will be required to realise specific occupational or rental strategies.
Light industrial facility for sale in Riverwalk Business Park, Riverwalk Road, Enfield, Greater London, EN3 — £1,100,000 • 1 bed • 1 bath • 3972 ft²
Light industrial facility for sale in Jade House, Lockfield Avenue, Enfield, EN3 7JY, EN3 — £1,300,000 • 1 bed • 1 bath • 6895 ft²
Light industrial facility for sale in Front Of 284-286 Alma Road, 286 Alma Road, Enfield, Greater London, EN3 — £695,000 • 1 bed • 1 bath • 2667 ft²
Trade counter for sale in Unit 2 Plaza Business Centre, Stockingswater Lane, Enfield, EN3 7PH, EN3 — £2,950,000 • 1 bed • 1 bath • 10670 ft²
Warehouse for sale in Queensway, Enfield, Greater London, EN3 — £1,800,000 • 1 bed • 1 bath • 8988 ft²
Warehouse for sale in Units 20/21 & 22/23 Riverwalk Business Centre, Riverwalk Road, Enfield, EN3 — POA • 1 bed • 1 bath










































