**Standout Features:**
- Spacious one-bedroom flat in a modern building
- Prime city centre location (NG1) walking distance to amenities
- Open-plan living space with large windows for natural light
- Fitted kitchen with integrated appliances included
- Secure intercom entry with concierge service
- 131 years remaining on the lease (originally 150 years from 2004)
- Council Tax Band B, affordable for city living
**Potential Concerns:**
- No parking available
- Service Charge: £2,589.80 per annum
- Area classed as deprived, which may affect perception and investment
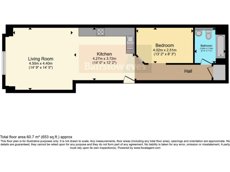
Experience city centre living at its best with this modern one-bedroom apartment located in the sought-after Marco Island complex in Nottingham. Offering an impressive 653 square feet of space, this apartment features an inviting open-plan living and dining area, complemented by a modern kitchen with bright white cabinets and integrated appliances. Enjoy stunning city views from the fourth-floor position, ensuring a vibrant city lifestyle that appeals to students and professionals alike.
This property is chain-free, making it an excellent opportunity for cash buyers and investors looking for a turnkey addition to their portfolio. The area is rich with amenities including schools, shopping, dining, and leisure facilities, ensuring convenience at your doorstep. However, note the absence of designated parking and a moderate service charge, which are important considerations for potential owners. Take advantage of this rare opportunity—such properties in this prime location won’t be available for long!
1 bedroom apartment for sale in Huntingdon Street, Nottingham, NG1 — £85,000 • 1 bed • 1 bath • 450 ft²
1 bedroom flat for sale in Huntingdon Street, Nottingham, Nottinghamshire, NG1 — £98,000 • 1 bed • 1 bath • 474 ft²
1 bedroom flat for sale in Huntingdon Street, NOTTINGHAM, Nottinghamshire, NG1 — £80,000 • 1 bed • 1 bath • 443 ft²
1 bedroom apartment for sale in Huntingdon Street, Marco Island Huntingdon Street, NG1 — £85,000 • 1 bed • 1 bath • 490 ft²
1 bedroom apartment for sale in Marco Island, Huntingdon Street, NG1 — £100,000 • 1 bed • 1 bath • 446 ft²
1 bedroom apartment for sale in Huntingdon Street, Nottingham, Nottinghamshire, NG1 — £92,000 • 1 bed • 1 bath • 525 ft²


















































