### Standout Features:
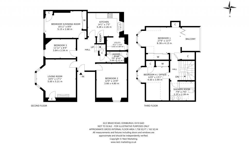
- **Spacious 2nd Floor Flat** over two levels with a total of 1,752 sq ft.
- Elegant **bay-windowed living room** providing ample natural light.
- **Master bedroom with a private west-facing balcony**, perfect for relaxation.
- **Fully fitted kitchen** with integrated appliances and utility room.
- Two bright shower rooms featuring modern fixtures.
- Gas central heating, double glazing, and Velux windows for comfort.
- **Communal garden** and off-street parking available.
- Located just steps from Morningside's vibrant amenities and excellent schools, including South Morningside Primary.
- EPC rating: C, Council Tax Band: F.
### Summary Description:
Discover this charming double upper flat in the heart of sought-after Morningside, Edinburgh, where classic Victorian architecture meets modern comfort. This impressive residence offers four adaptable bedrooms, one of which could easily serve as a study, and boasts a spacious bay-windowed living room that floods the space with light. Enjoy the luxury of a private balcony off the master bedroom, ideal for savoring views of Blackford Hill and beyond.
With a well-designed kitchen and utility area, this property balances functionality and style for family living. Both shower rooms are bright and modern, ensuring convenience for busy mornings. The low-maintenance communal garden provides additional outdoor space for relaxation, while the surrounding streets allow for convenient off-street parking.
Situated near a wonderful array of coffee shops, restaurants, and local stores, this residence is perfect for families and professionals alike, offering easy access to public transport and green recreational areas. Boasting significant renovation potential and versatility, this flat can truly be tailored to your needs, creating a cozy family haven in a vibrant community. Don't miss out on this exceptional opportunity to own a piece of Edinburgh's charm—schedule your viewing today!
2 bedroom flat for sale in Newbattle Terrace, Edinburgh, EH10 — £335,000 • 2 bed • 1 bath • 775 ft²
4 bedroom flat for sale in 140a 2f2 Comiston Road, Edinburgh, EH10 5QN, EH10 — £419,995 • 4 bed • 1 bath • 1324 ft²
2 bedroom flat for sale in 368 (1F2), Morningside Road, EDINBURGH, EH10 4QN, EH10 — £320,000 • 2 bed • 1 bath • 700 ft²
2 bedroom flat for sale in 2F1, 11 Maxwell Street, Morningside, Edinburgh, EH10 5HT, EH10 — £370,000 • 2 bed • 1 bath • 883 ft²
3 bedroom flat for sale in 157/6 Morningside Road, Morningside, Edinburgh, EH10 4AX, EH10 — £379,000 • 3 bed • 2 bath • 1023 ft²
2 bedroom flat for sale in 2 (2F3) Springvalley Terrace, Morningside, Edinburgh, EH10 4QD, EH10 — £280,000 • 2 bed • 1 bath • 639 ft²






























































































































































