**Standout Features:**
- Chain-free two-bedroom split-level maisonette
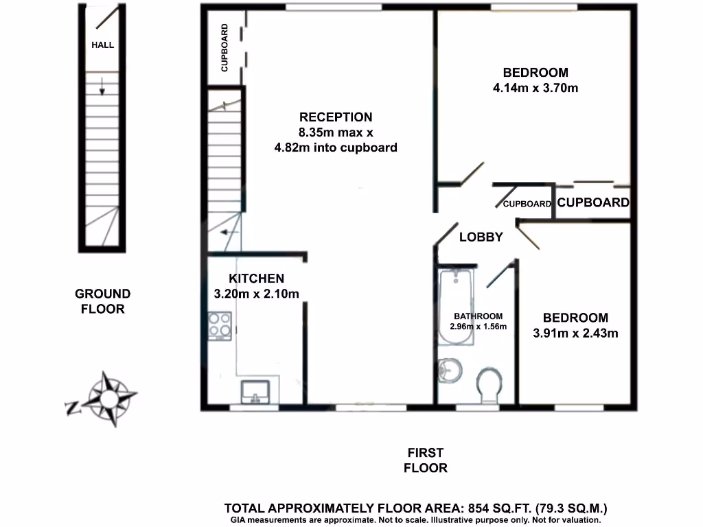
- Spacious 861 sq.ft. with modern finishes and plenty of natural light
- Open plan reception and dining area + separate kitchen/diner
- Beautiful communal garden, ideal for relaxation and entertaining
- Convenient on-street parking available
- Well-located, within walking distance to East Finchley Underground Station, local shops, and schools
**Notable Concerns:**
- Requires confirmation of service charge (approx. £1,800 per annum)
- Broadband speeds are noted as slow
Discover this charming two-bedroom maisonette in the heart of N2, offering a perfect blend of space and comfort for first-time buyers or savvy investors. With an impressive 861 sq.ft. of living space, this split-level home features a light-filled living room, modern kitchen/diner, and generous bedrooms, providing an adaptable lifestyle. The delightful communal garden adds a coveted outdoor element, great for gatherings or quiet evenings.
Positioned conveniently close to excellent transport links and a variety of schools rated "Good" or higher, this property is in an affluent, multi-ethnic neighborhood, appealing to professionals and families alike. While the broadband speed may be slow, the mobile signal is excellent—a perfect trade-off for local amenities. This chain-free gem won't last long, so seize the opportunity to make it your own today!
2 bedroom maisonette for sale in Springcroft Avenue, London, N2 — £510,000 • 2 bed • 1 bath • 665 ft²
2 bedroom ground floor maisonette for sale in Kitchener Road, LONDON, N2 — £500,000 • 2 bed • 1 bath • 688 ft²
2 bedroom maisonette for sale in Manor Park Road, Finchley, N2 — £600,000 • 2 bed • 1 bath • 659 ft²
2 bedroom apartment for sale in High Road, East Finchley, N2 9AB, N2 — £499,950 • 2 bed • 1 bath • 776 ft²
2 bedroom maisonette for sale in Kitchener Road, East Finchley, N2 — £475,000 • 2 bed • 1 bath • 743 ft²
2 bedroom maisonette for sale in Kitchener Road, East Finchley, N2 — £550,000 • 2 bed • 1 bath • 700 ft²






































