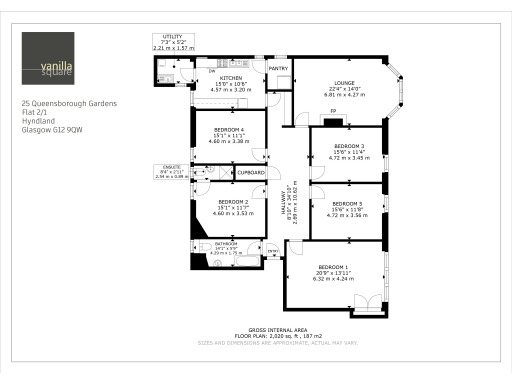
**Standout Features:**
- Spacious 5-bedroom flat in a stunning Victorian tenement.
- Over 2,000 sq ft of versatile living space with period details.
- Beautiful views of the adjoining Hyndland Bowling Club.
- Well-appointed kitchen with separate pantry and utility room.
- High ceilings, large sash windows, and original woodwork throughout.
- Access to a communal garden and nearby permit parking.
**Summary:**
Discover an exceptional opportunity in the heart of Hyndland with this generously sized five-bedroom flat located on the second floor of an elegant red sandstone tenement. Spanning over 2,000 sq ft, this residence showcases magnificent period features, such as exquisite high ceilings, original woodwork, and large sash windows that illuminate the expansive living spaces.
The grand 34ft entrance hallway leads to a formal lounge with a charming bay window, perfect for relaxing while soaking in views over the bowling green. The well-equipped kitchen provides ample space for dining and gatherings, enhanced by practical additions like a pantry and utility room. Each of the five spacious bedrooms offers flexible usage options—ideal as sleeping quarters, home offices, or additional living areas.
Set in one of Glasgow’s most prestigious neighborhoods, you’ll enjoy the vibrant community atmosphere and easy access to excellent cafes, shops, parks, and transport links. With on-street parking available and a charming communal garden at your disposal, this flat combines comfort and convenience in a desirable location.
While the area has shown some economic deprivation, the strong sense of community and the potential for investment in such a sought-after district make this an attractive proposition for families and investors alike. Don’t miss this rare chance to own a unique property with endless possibilities—schedule your viewing today!
4 bedroom flat for sale in Westbourne Gardens, Hyndland, G12 — £695,000 • 4 bed • 2 bath • 2012 ft²
2 bedroom flat for sale in 3/2 43 Queensborough Gardens, Hyndland, G12 9QP, G12 — £269,000 • 2 bed • 1 bath • 1001 ft²
2 bedroom flat for sale in Airlie Street, Hyndland, G12 — £209,000 • 2 bed • 1 bath • 700 ft²
3 bedroom flat for sale in 179 Hyndland Road, Hyndland, G12 — £460,000 • 3 bed • 1 bath • 1378 ft²
3 bedroom flat for sale in 182 Hyndland Road, Hyndland, G12 — £477,000 • 3 bed • 1 bath • 1367 ft²
5 bedroom town house for sale in Kingsborough Gardens, Hyndland, G12 — £1,275,000 • 5 bed • 3 bath • 4467 ft²


































































































































































