Five bedrooms, garage potential and excellent local school access for growing households.
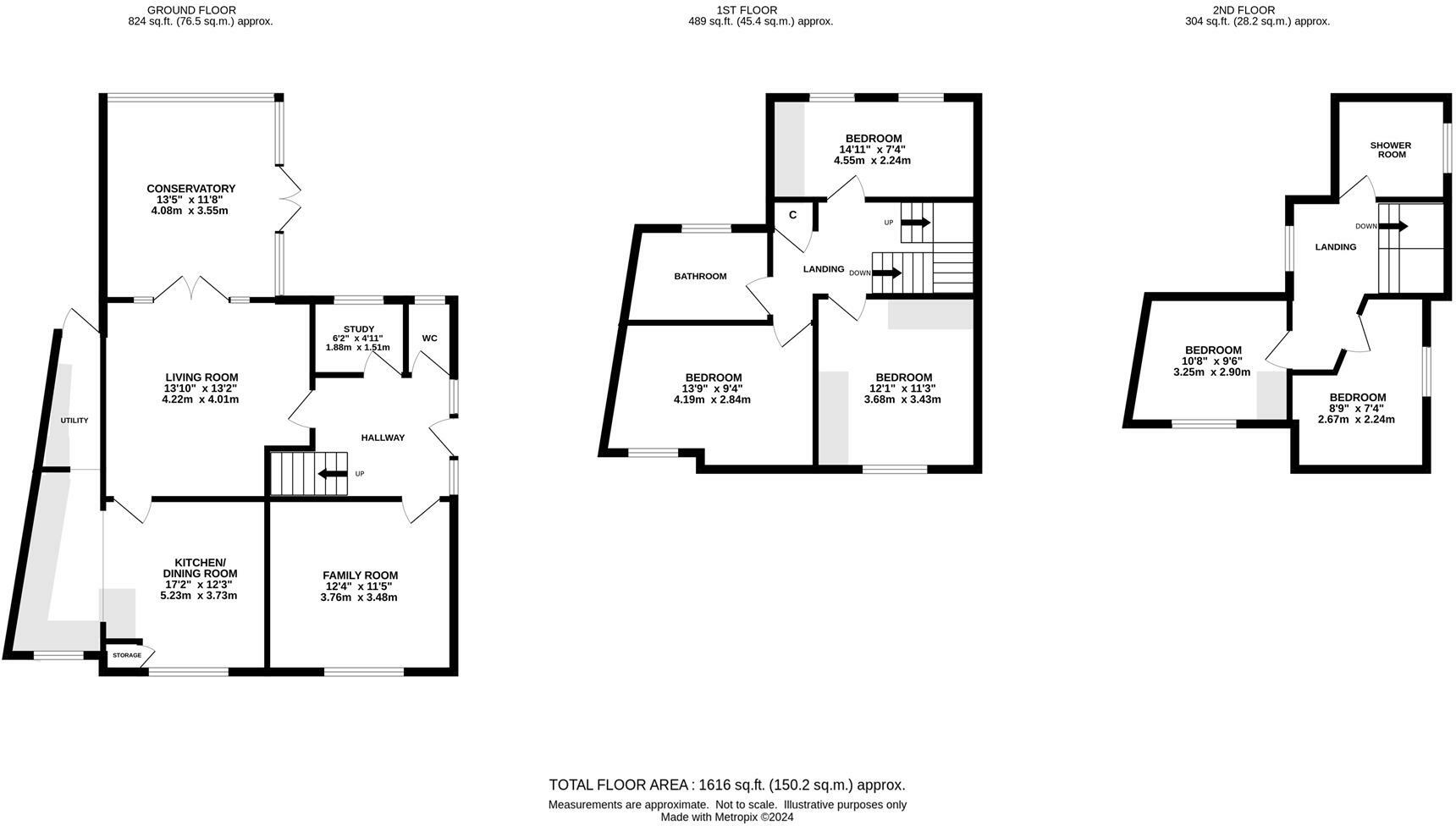
- Detached three-storey family house, approx. 1,616 sq ft
- Five bedrooms and two bathrooms, flexible upstairs layout
- Conservatory and two reception rooms, study and utility
- Detached garage with road access; good conversion potential
- Short walk to Ingrave Johnson Primary; in St Martin's catchment
- No onward chain — quicker relocation possible
- Built c.1967–75; may need modernization and systems checks
- Double glazing present but installation date unknown; council tax expensive
Set in a quiet cul-de-sac in Ingrave, this three-storey detached house offers flexible family accommodation across approximately 1,616 sq ft. The ground floor has two reception rooms, a conservatory and a kitchen/dining space, with a study and utility completing the layout. Upstairs are five bedrooms served by a family bathroom and a separate shower room on the top floor. The detached garage, accessible from the garden and Middle Road, presents useful conversion or home-business potential.
The location is a clear draw: a short walk to Ingrave Johnson Church of England Primary School and inside the desirable St Martin's secondary school catchment. Off-street parking is provided by a paved driveway and the plot is a decent size with a paved patio and lawned rear garden. The property is offered with no onward chain, which can speed a move.
Practical points to note — the house dates from c.1967–75, has double glazing of unknown installation date, and mains gas boiler and radiators. Council tax is described as expensive. While the accommodation is roomy and well laid-out, buyers seeking a fully modernised finish should allow budget for updating and to verify the age and condition of key systems (windows, boiler, electrics) where required.
5 bedroom detached house for sale in Grange Close, Ingrave, Brentwood, CM13 — £1,000,000 • 5 bed • 1 bath • 1630 ft²
3 bedroom detached house for sale in School Lane, Ingrave, Brentwood, CM13 — £600,000 • 3 bed • 1 bath • 1060 ft²
3 bedroom semi-detached house for sale in Brentwood Road, Ingrave, CM13 — £425,000 • 3 bed • 1 bath • 893 ft²
4 bedroom detached house for sale in Pittman Close, Ingrave, Brentwood, CM13 — £825,000 • 4 bed • 1 bath • 1775 ft²
5 bedroom detached house for sale in Brentwood Road, Herongate, Brentwood, CM13 — £1,350,000 • 5 bed • 2 bath • 2497 ft²
4 bedroom semi-detached house for sale in Brentwood Road, BRENTWOOD, Essex, CM13 — £575,000 • 4 bed • 2 bath • 1415 ft²


































































