High-spec 4-bed townhouse with top-floor terrace and garage, steps from Waterbeach station.
High-spec new build with Silestone kitchen worktops
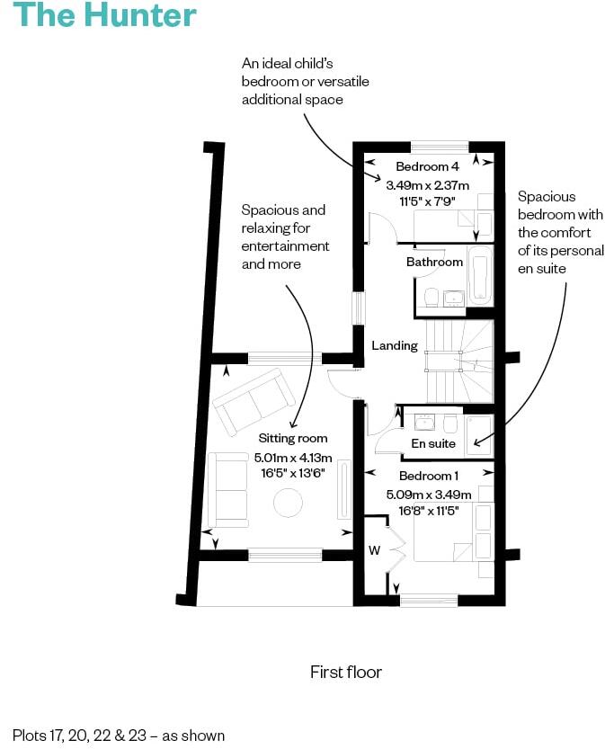
This contemporary four-bedroom mid-terrace in Gillyflower Lane, Waterbeach, offers high-spec new-build living designed around light and open-plan flow. The home features a fitted kitchen with Silestone worktops, integrated appliances, fitted wardrobes in key bedrooms, and quality flooring throughout — ready to move into for families seeking low-maintenance living.
Arranged across three floors, the layout includes a ground-floor study, separate dining/snug, utility and cloakroom, a dual-aspect sitting room on the first floor, and two top-floor bedrooms with a private terrace offering countryside views. A garage and rear garden provide practical outdoor and storage space for family life and bikes for the cycle routes into Cambridge.
Practical considerations: the property occupies a relatively small total floor area for a four-bedroom house and broadband speeds in the area are reported as very slow, which may affect home working or streaming. Council tax band is unknown; interested buyers should confirm local costs and service arrangements. Overall, this is a high-quality, commuter-friendly home suited to families wanting contemporary design within easy reach of Waterbeach station and green open spaces.
4 bedroom end of terrace house for sale in Massingham Way, Waterbeach , Cambridge, CB25 — £849,950 • 4 bed • 4 bath • 1085 ft²
4 bedroom terraced house for sale in Milley Way, Waterbeach, Cambridge, CB25 — £599,950 • 4 bed • 2 bath • 1013 ft²
4 bedroom house for sale in Apple Walk, Waterbeach, Cambridge, CB25 — £749,950 • 4 bed • 3 bath • 1998 ft²
3 bedroom terraced house for sale in Massingham Way, Waterbeach, Cambridge, Cambridgeshire, CB25 — £450,000 • 3 bed • 2 bath • 1205 ft²
3 bedroom end of terrace house for sale in Denny End Road,
Waterbeach,
Cambridge,
CB25 9QE, CB25 — £500,000 • 3 bed • 2 bath • 1344 ft²
4 bedroom end of terrace house for sale in Massingham Way, Waterbeach, Cambridge, CB25 — £849,950 • 4 bed • 1 bath • 1569 ft²






















































































