Chain-free 3-bed ground-floor maisonette with private garden and parking.
Chain-free three-bedroom ground-floor maisonette with private garden
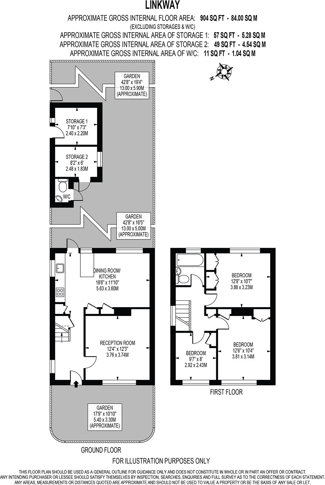
Set within a handsome 1930s semi-detached block in Raynes Park, this chain-free three-bedroom ground-floor maisonette offers comfortable family living with private outdoor space. The apartment’s 904 sq ft layout includes three well-proportioned bedrooms, a family-sized kitchen-dining area and direct access to a private garden — a rare find close to good schools and local amenities.
Practical running costs are competitive: a low service charge of £400pa, peppercorn ground rent and affordable council tax. Allocated off-street parking and fast broadband make the home well-suited to busy households and home-workers. The building benefits from double glazing and gas central heating via boiler and radiators.
Buyers should note the lease length (around 84–86 years remaining) — important for mortgage and future-sale considerations — and the property’s solid-brick construction which likely lacks cavity insulation. There is one bathroom, so families may want to consider bathroom reconfiguration or extension potential. Flooding risk is medium; purchasers should review local flood reports and insurance implications.
Overall this is a characterful, conveniently located family home with garden and parking, offered chain-free and with scope to add value through targeted updating and lease extension.
2 bedroom maisonette for sale in Abbott Avenue, Raynes Park, SW20 — £400,000 • 2 bed • 1 bath • 521 ft²
2 bedroom apartment for sale in Grand Drive, Raynes Park, SW20 — £450,000 • 2 bed • 1 bath • 859 ft²
2 bedroom apartment for sale in Aboyne Drive, Raynes Park, SW20 — £375,000 • 2 bed • 1 bath • 719 ft²
3 bedroom apartment for sale in Kingston Road, Raynes Park, SW20 — £650,000 • 3 bed • 2 bath • 1180 ft²
4 bedroom semi-detached house for sale in Beverley Way, Raynes Park, SW20 — £750,000 • 4 bed • 1 bath • 1576 ft²
2 bedroom maisonette for sale in Cambridge Road, London, SW20 — £600,000 • 2 bed • 1 bath • 790 ft²


























































