Sunny two-bedroom home close to parks, shops and transport links.
Two double bedrooms with good built-in storage
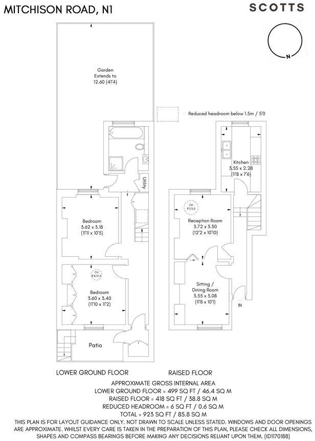
A bright, well-proportioned two-bedroom maisonette arranged across the lower levels of a Victorian mid-terrace. The raised ground-floor living space benefits from high ceilings, original mouldings, a fireplace and built-in shelving, creating generous reception rooms for family life and entertaining. A south-facing private garden of approximately 41ft provides rare outdoor space for central Islington.
Practical points suit buyers seeking space and period character: the property extends to about 923 sq ft, has two double bedrooms with good storage and one bathroom accessed from the lower level. The kitchen sits on a half-landing with garden views, and the layout works well for everyday family routines.
Important considerations: the flat is leasehold with around 97 years remaining, a service charge of about £1,500 per year and a ground rent of £10. The building is solid-brick and likely lacks cavity insulation, which may mean retrofit costs to improve thermal performance. Local data show above-average crime and area deprivation metrics to factor into buyer decisions.
Location is a key strength — a quiet cul-de-sac close to De Beauvoir, Newington Green and Upper Street, with easy access to Canonbury and Essex Road Overground stations and frequent bus routes along Essex Road. Nearby green spaces, well-regarded primary schools and independent shops and restaurants add to the neighbourhood appeal.
2 bedroom maisonette for sale in Mitchison Road, East Canonbury, Islington, London, N1 — £1,150,000 • 2 bed • 2 bath • 1035 ft²
3 bedroom apartment for sale in Mitchison Road, London, N1 — £575,000 • 3 bed • 1 bath • 832 ft²
2 bedroom ground floor flat for sale in Almorah Road, London, N1 — £900,000 • 2 bed • 1 bath • 1010 ft²
2 bedroom maisonette for sale in Grosvenor Avenue, Newington Green, Islington, London, N5 — £1,250,000 • 2 bed • 1 bath • 1110 ft²
3 bedroom maisonette for sale in St. Pauls Road, London, N1 — £650,000 • 3 bed • 2 bath • 761 ft²
2 bedroom apartment for sale in Petherton Road, London, N5 — £850,000 • 2 bed • 3 bath • 1250 ft²


























































































