Income-producing one-bedroom buy-to-let near Walsall amenities and transport.
One-bedroom leasehold flat in town-centre Victorian building
A one-bedroom leasehold flat in a Victorian mixed-use building on Leicester Street, offered with a long-term tenant in situ. The property produces a reported gross income of £6,600 per year against a guide price of £62,000, giving an approximate gross yield of 10.6% — attractive for buy-to-let portfolios. The building has traditional red-brick character and town-centre position with immediate access to shops, transport and amenities.
Important negatives are clear: the neighbourhood is classified as very deprived with very high crime and a high flood risk. Broadband speeds are reported very slow and there are no internal photos or floorplans provided, so buyers should arrange a full inspection and review of the Let Property Pack, EPC and tenancy paperwork before committing. The flat is leasehold (c.980 years remaining) and likely requires cosmetic updating to maximise rental value.
This is primarily a straightforward investment purchase for buyers willing to accept town-centre risks in exchange for strong headline rental return. It suits investors seeking an income-producing, low-management flat with redevelopment or upgrade potential, provided they perform usual due diligence on condition, flood mitigation and local market dynamics.
1 bedroom flat for sale in Bridge Street, Walsall, WS1 — £55,000 • 1 bed • 1 bath • 502 ft²
1 bedroom apartment for sale in Tudor House, Bridge Street, Walsall WS1 1EW, WS1 — £59,000 • 1 bed • 1 bath • 378 ft²
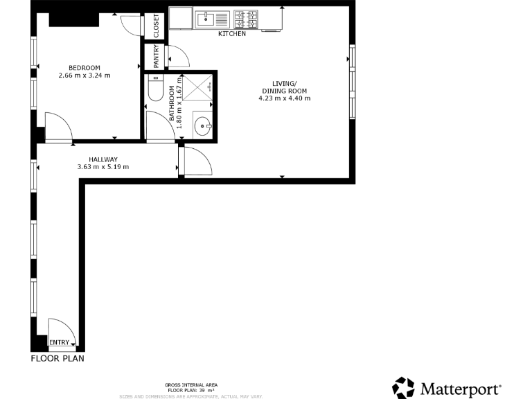
1 bedroom flat for sale in One, Walsall, WS2 — £99,000 • 1 bed • 1 bath • 472 ft²
2 bedroom apartment for sale in Bridge Street, Walsall, WS1 — £100,000 • 2 bed • 1 bath • 559 ft²
Commercial property for sale in Leicester Street, Walsall, WS1 — £150,000 • 1 bed • 1 bath • 1055 ft²
1 bedroom flat for sale in Bridge Street, Walsall, WS1 — £100,000 • 1 bed • 1 bath • 594 ft²










































































































