Income-producing three-bed flat with tenant in place and refurbishment upside.
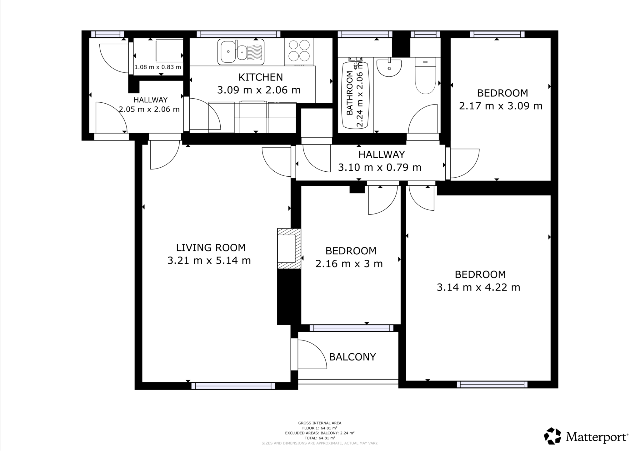
- Three bedrooms, one three-piece bathroom, approx. 721 sq ft
- Tenant in situ producing £8,400 gross annual income
- Leasehold with c.981 years remaining (long lease)
- On-street parking and communal rear garden
- Small overall size and dated internal finishes require modernisation
- Area classed as deprived; local crime is above average
- Likely communal maintenance/management costs for block
- Suitable for buy-to-let investors or developers seeking refurbishment potential
A three-bedroom leasehold flat in a mid‑20th-century block on Bristol Road South, offered with an existing tenancy and immediate rental income. The property totals about 721 sq ft and sits in an established Northfield location with on-street parking and a communal rear garden.
This is primarily an investment opportunity. The current gross annual income is £8,400 and the tenants wish to remain; the long lease (981 years remaining) removes a common leasehold risk. The apartment is straightforward to manage from a landlord perspective and could deliver uplift through targeted internal refurbishment and modernisation.
Be clear on the constraints: the flat is small, dated and will require updating to increase rental value or appeal to owner-occupiers. The area scores as deprived with above-average local crime, so tenant demand and achievable rents should be considered against local market comparables and management costs. Communal maintenance liabilities and potential capital expenditure for common areas are likely for a building of this era.
For a serious investor or developer seeking a low-complexity, income-producing asset with short-term rental continuity and medium-term uplift potential, this represents a practical addition to a portfolio. Assess the Let Property Pack and factor in refurbishment and management costs when modelling returns.
2 bedroom flat for sale in New Coventry Road, Birmingham, B26 — £140,000 • 2 bed • 2 bath • 657 ft²
2 bedroom flat for sale in Rothesay Croft, Birmingham, B32 — £115,000 • 2 bed • 1 bath • 506 ft²
2 bedroom flat for sale in Escelie Way, Birmingham, B29 — £171,500 • 2 bed • 1 bath • 538 ft²
1 bedroom flat for sale in Longleat Avenue, Birmingham, B15 — £133,000 • 1 bed • 1 bath • 517 ft²
2 bedroom flat for sale in Hagley Road, Birmingham, B16 — £113,000 • 2 bed • 1 bath • 658 ft²
2 bedroom flat for sale in New Coventry Road, Birmingham, B26 — £128,000 • 2 bed • 2 bath • 657 ft²










































































































